Detailed Property Information

Building Summary

Data last updated on: 5/13/2026     Ownership current as of: 5/4/2026     Tax Year: 2026
REID 5896782160000

PIN # 5896-78-2160

Location Address Property Description
2055 Storm Canyon RD LO:077 BL:4635B
   
Property Owner Owner's Mailing Address
ARIAS, LUIS PEDRAZA;MENDOZA, LIZETH PEDRAZA
2055 STORM CANYON RD
WINSTON SALEM NC 27106
Parcel
Buildings
Misc Improvements
Land
Deeds
Notes
Sales
Photos
Tax Bill
Map
Building Location Address
2055 Storm Canyon RD
Card   of  1
Building Details

Building Type RESIDENTIAL
Building Use SINGLE-FAMILY
Units 0
Living Area (SQFT) 2230
Number of Stories 1.50
Style RANCH
Foundation SLAB
Frame FRAME
Exterior BRICK
Const Type
Heating Heat Pump
Air Cond HEAT PUMP
Plumbing Baths (Full):   2
Baths (Half):   1
Extra Fixtures:   0
Total Plumbing Fixtures:   8 
Bedrooms 4
Floor CARPET-CONCRETE
Roof Cover Asphalt Shingle
Roof Type GABLE
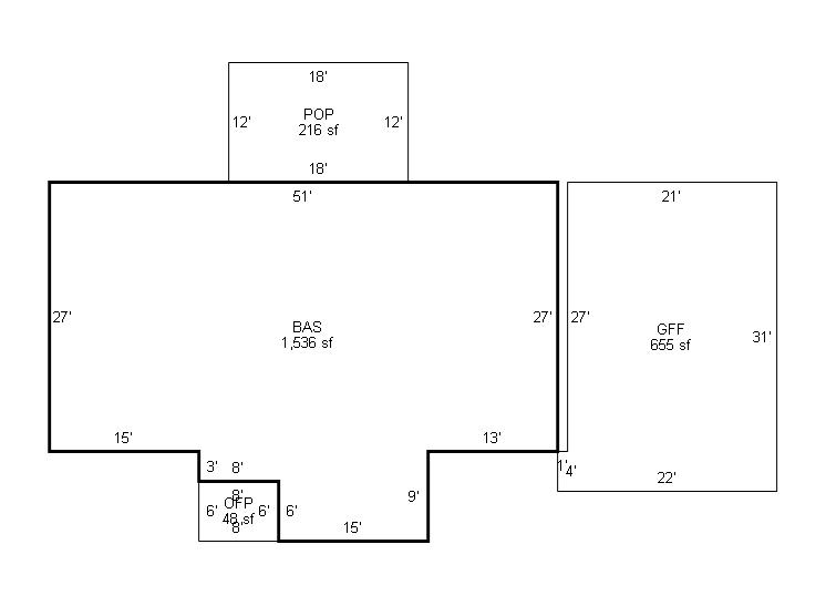
Main Body (SQFT) 1536
Building Description

Year Built 1975
Additions 4
Effective Year 2003
Remodeled 0
Interior Adj.
Other Features
Building Total & Improvement Details

Grade C+5 105%
Percentage Complete 100
Total Adjusted Replacement Cost New $351,687
Physical Depreciation (% Bad) 0%
Depreciated Value $270,799
Economic Depreciation (% Bad) 0%
Functional Depreciation (% Bad) 0%
Total Depreciated Value $270,799
Market Area Factor 1.00
Building Value $270,800
Misc Improvements Value
Total Improvement Value $270,800

Assessed Land Value $55,000
   
Assessed Total Value $325,800



Addition Summary 
StoryTypeCodeArea
1.00 OPEN FRAME PORCH OPEN 48
1.00 PATIO LC PATI 216
1.00 GAR/FRM/FLOOR/FIN GAR/ 655
1.00 UPPER STORY FINISHED UPPE 694
 
Other Improvements 
 


Building Sketch
Photograph
Building Sketch Building Photo
(Click sketch for bigger image)