Detailed Property Information

Building Summary

Data last updated on: 1/1/0001     Ownership current as of: 12/17/2025     Tax Year: 2025
REID 6825399306000

PIN # 6825-39-9306

Location Address Property Description
1900 Buena Vista RD LO:064 BL:1141
   
Property Owner Owner's Mailing Address
BURNS, JOHN GILLETTE;BURNS, MOLLY FLOY
63 OAK AVE
MEXICO BEACH FL 32456
Parcel
Buildings
Misc Improvements
Land
Deeds
Notes
Sales
Photos
Tax Bill
Map
Building Location Address
1900 Buena Vista RD
Building Description
SINGLE-FAMILY
Card   of  1
Bldg Type RESIDENTIAL
Units 0
Living Area (SQFT) 2582
Number of Stories 1.00
Style CONVENTIONAL
Foundation MASONRY
Frame MASONRY
Exterior BRICK
Const Type
Heating Forced Warm Air
Air Cond CENTRAL
Plumbing Baths (Full):   3
Baths (Half):   0
Extra Fixtures:   0
Total Plumbing Fixtures:   9 
Bedrooms 4
Floor CARPET
Roof Cover Asphalt Shingle
Roof Type GABLE
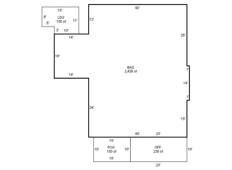
Main Body (SQFT) 2426
Year Built 1922
Additions 8
Effective Year 1976
Remodeled 2005
Interior Adj.
Other Features
Building Total & Improvement Details

Grade B+15 140%
Percentage Complete 100
Total Adjusted Replacement Cost New $658,597
Physical Depreciation (% Bad) AVER 62%
Depreciated Value $250,267
Economic Depreciation (% Bad) 0
Functional Depreciation (% Bad) 0
Total Depreciated Value $250,267
Market Area Factor 1.03
Building Value $257,800
Misc Improvements Value $3,900
Total Improvement Value $261,700

Assessed Land Value $356,300
   
Assessed Total Value $618,000



Addition Summary 
StoryTypeCodeArea
1.00 PATIO GOOD PATI 150
1.00 OPEN FRAME PORCH OPEN 230
1.00 LANDING GOOD LAND 150
1.00 FRAME ADDITION FRAM 156
1.00 BASEMENT-UNFIN-CF BASE 1080
1.00 ATTIC FINISHED ATTI 432
1.00 ATTIC UNFINISHED ATTI 432
1.00 LANDING GOOD-R LAND 1
 
Other Improvements 
UnitsDescriptionItemCodeYear% BadValue
20x18 DIMENSIONS GAR/MAS/FLOOR/FIN-R 2003 44 3900
 


Building Sketch
Photograph
Building Sketch Building Photo
(Click sketch for bigger image)