Guilford County North Carolina
Home   County Home   Tax Dept Home   Tax Bills   Maps   Tax Rates

Guilford County Real Property Data          

Building Summary

Data last updated on: 4/9/2026     Ownership current as of: 4/8/2026     Tax Year: 2026
REID 118729

PIN # 7884-55-4683

Location Address Property Description
215 WARD RD 1 AC ANDERSON BROOKS
   
Property Owner Owner's Mailing Address
LEON, SERGIO ANTONIO BRIBIESCA
215 WARD RD
GREENSBORO NC 27405
Parcel
Buildings
Misc Improvements
Land
Deeds
Notes
Sales
Photos
Tax Bill
Map
Building Location Address
215 WARD RD
Card   of  2
Building Details

Building Type 01-SFR-CONST
Building Use 01-SFR
Units 1
Living Area (SQFT) 830
Number of Stories 1.00
Style 1.0 STORY
Foundation CONTFOOT
Exterior ALUMINUM OR VINYL
Const Type
Heating NONE
Air Cond WALL UNIT
Plumbing Baths (Full):   1
Baths (Half):   0
Extra Fixtures:   0
Total Plumbing Fixtures:   3 
Bedrooms 3
Main Body (SQFT) 758
Building Description

Year Built 1959
Additions 1
Effective Year 2005
Remodeled 0
Interior Adj.
Other Features
Building Total & Improvement Details

Grade C-5 95%
Percentage Complete 100
Total Adjusted Replacement Cost New $111,419
Physical Depreciation (% Bad) 0%
Depreciated Value $88,021
Economic Depreciation (% Bad) 0%
Functional Depreciation (% Bad) 0%
Total Depreciated Value $88,021
Market Area Factor 1.00
Building Value $88,000
Misc Improvements Value $2,000
Total Improvement Value $90,000

Assessed Land Value $30,000
   
Assessed Total Value $146,300



Addition Summary 
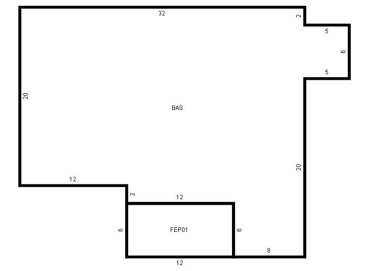
StoryTypeCodeArea
1.00 Porch, Encl Finish FEP0 72
 
Other Improvements 
UnitsDescriptionItemCodeYear% BadValue
20x36 DIMENSIONS STORAGE BUILDING 2005 90 2000
 


Building Sketch
Photograph
Building Sketch Photo is unavailable for this parcel.
(Click sketch for bigger image)





Per North Carolina General Statute 105-285-287 (d), all real property in North Carolina is subject to listing and valuation annually as it exists on January 1. Real Property assessments are based on market values as of the date of the last countywide reappraisal in 2026.

Prints best in landscape mode