Guilford County North Carolina
Home   County Home   Tax Dept Home   Tax Bills   Maps   Tax Rates

Guilford County Real Property Data          

Building Summary

Data last updated on: 4/6/2026     Ownership current as of: 4/2/2026     Tax Year: 2026
REID 20080

PIN # 7875-70-1532

Location Address Property Description
2502 E BESSEMER AVE 11-12 23-24 BB J W TURNER
   
Property Owner Owner's Mailing Address
RCOM, MAI H;RMAH, HUIN
2211 AGNES ST
HIGH POINT NC 27265
Parcel
Buildings
Misc Improvements
Land
Deeds
Notes
Sales
Photos
Tax Bill
Map
Building Location Address
2502 E BESSEMER AVE
Card   of  1
Building Details

Building Type 01-SFR-CONST
Building Use 01-SFR
Units 1
Living Area (SQFT) 1120
Number of Stories 1.00
Style 1.0 STORY
Foundation CONTFOOT
Exterior ALUMINUM OR VINYL
Const Type Gable
Heating FORCED AIR-DUCTED
Air Cond NONE
Plumbing Baths (Full):   1
Baths (Half):   0
Extra Fixtures:   0
Total Plumbing Fixtures:   3 
Bedrooms 3
Main Body (SQFT) 1090
Building Description

Year Built 1911
Additions 2
Effective Year 1960
Remodeled 0
Interior Adj.
Other Features
Building Total & Improvement Details

Grade D 75%
Percentage Complete 100
Total Adjusted Replacement Cost New $123,084
Physical Depreciation (% Bad) 0%
Depreciated Value $41,849
Economic Depreciation (% Bad) 0%
Functional Depreciation (% Bad) 0%
Total Depreciated Value $41,849
Market Area Factor 1.00
Building Value $41,800
Misc Improvements Value
Total Improvement Value $41,800

Assessed Land Value $40,000
   
Assessed Total Value $81,800



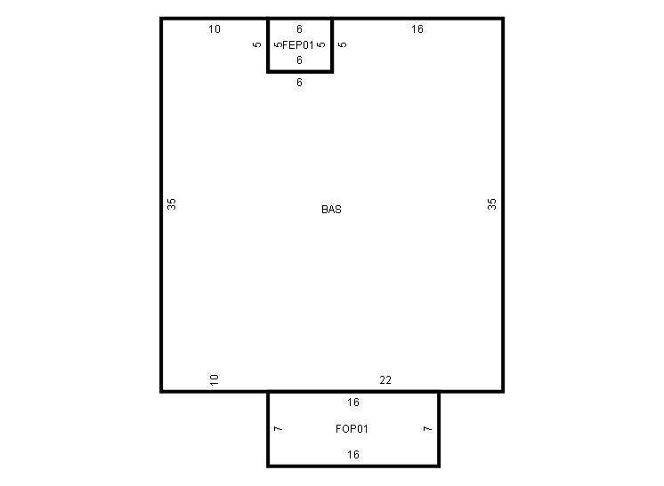
Addition Summary 
StoryTypeCodeArea
1.00 Porch, Encl Finish FEP0 30
1.00 Porch, Open Fin FOP0 112
 
Other Improvements 
 


Building Sketch
Photograph
Building Sketch Photo is unavailable for this parcel.
(Click sketch for bigger image)





Per North Carolina General Statute 105-285-287 (d), all real property in North Carolina is subject to listing and valuation annually as it exists on January 1. Real Property assessments are based on market values as of the date of the last countywide reappraisal in 2026.

Prints best in landscape mode