Guilford County North Carolina
Home   County Home   Tax Dept Home   Tax Bills   Maps   Tax Rates

Guilford County Real Property Data          

Building Summary

Data last updated on: 4/6/2026     Ownership current as of: 4/2/2026     Tax Year: 2026
REID 21001

PIN # 7874-99-2250

Location Address Property Description
2818 E MARKET ST 2818 E MARKET ST GREGORY
   
Property Owner Owner's Mailing Address
ARIAS, JESUS ANAYA JR;HERNANDEZ, BLANCA
PO BOX 1805
GREENSBORO NC 27402
Parcel
Buildings
Misc Improvements
Land
Deeds
Notes
Sales
Photos
Tax Bill
Map
Building Location Address
2818 E MARKET ST
Card   of  1
Building Details

Building Type 01-SFR-CONST
Building Use 01-SFR
Units 1
Living Area (SQFT) 1196
Number of Stories 1.00
Style 1.0 STORY
Foundation CONTFOOT
Exterior FACE BRK
Const Type
Heating FORCED AIR-DUCTED
Air Cond NONE
Plumbing Baths (Full):   1
Baths (Half):   0
Extra Fixtures:   0
Total Plumbing Fixtures:   3 
Bedrooms 2
Main Body (SQFT) 1196
Building Description

Year Built 1928
Additions 1
Effective Year 1980
Remodeled 0
Interior Adj.
Other Features
Building Total & Improvement Details

Grade C-10 90%
Percentage Complete 100
Total Adjusted Replacement Cost New $165,928
Physical Depreciation (% Bad) 0%
Depreciated Value $89,601
Economic Depreciation (% Bad) 0%
Functional Depreciation (% Bad) 0%
Total Depreciated Value $89,601
Market Area Factor 1.00
Building Value $89,600
Misc Improvements Value $4,300
Total Improvement Value $93,900

Assessed Land Value $40,000
   
Assessed Total Value $133,900



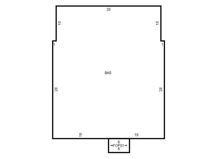
Addition Summary 
StoryTypeCodeArea
1.00 Porch, Open Fin FOP0 24
 
Other Improvements 
UnitsDescriptionItemCodeYear% BadValue
8x16 DIMENSIONS CARPORT 1978 87 400
16x16 DIMENSIONS GARAGE 1972 88 3900
 


Building Sketch
Photograph
Building Sketch Photo is unavailable for this parcel.
(Click sketch for bigger image)





Per North Carolina General Statute 105-285-287 (d), all real property in North Carolina is subject to listing and valuation annually as it exists on January 1. Real Property assessments are based on market values as of the date of the last countywide reappraisal in 2026.

Prints best in landscape mode