Guilford County North Carolina
Home   County Home   Tax Dept Home   Tax Bills   Maps   Tax Rates

Guilford County Real Property Data          

Building Summary

Data last updated on: 1/23/2026     Ownership current as of: 1/22/2026     Tax Year: 2026
REID 214208

PIN # 7804-50-0845

Location Address Property Description
4605 FREESTONE ST 98 PB174-28 PH 2-B SEC 1 ALDERBROOK PL:174-28
   
Property Owner Owner's Mailing Address
WU, TSUNG-CHENG TRUSTEE;HUNG, TZU-SUI TRUSTEE;WU AND HUNG FAMILY TRUST
4605 FREESTONE ST
HIGH POINT NC 27265
Parcel
Buildings
Misc Improvements
Land
Deeds
Notes
Sales
Photos
Tax Bill
Map
Building Location Address
4605 FREESTONE ST
Card   of  1
Building Details

Building Type 01-SFR-CONST
Building Use 01-SFR
Units 1
Living Area (SQFT) 2820
Number of Stories 1.00
Style 2.0 STORY
Foundation CONTFOOT
Exterior HARDIPLANK
Const Type
Heating FORCED AIR-DUCTED
Air Cond CENTRAL
Plumbing Baths (Full):   2
Baths (Half):   1
Extra Fixtures:   0
Total Plumbing Fixtures:   8 
Bedrooms 5
Main Body (SQFT) 1200
Building Description

Year Built 2008
Additions 4
Effective Year 2013
Remodeled 0
Interior Adj.
Other Features
Building Total & Improvement Details

Grade C+10 110%
Percentage Complete 100
Total Adjusted Replacement Cost New $238,894
Physical Depreciation (% Bad) 0%
Depreciated Value $219,782
Economic Depreciation (% Bad) 0%
Functional Depreciation (% Bad) 0%
Total Depreciated Value $219,782
Market Area Factor 1.00
Building Value $219,800
Misc Improvements Value
Total Improvement Value $219,800

Assessed Land Value $54,000
   
Assessed Total Value $273,800



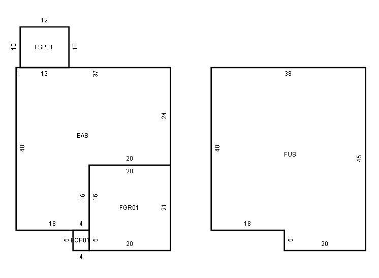
Addition Summary 
StoryTypeCodeArea
1.00 Porch, Screen Fin FSP0 120
1.00 Porch, Open Fin FOP0 20
1.00 Garage, Finished FGR0 420
1.00 Upper Story Fin FUS 1620
 
Other Improvements 
 


Building Sketch
Photograph
Building Sketch Building Photo
(Click sketch for bigger image)





Per North Carolina General Statute 105-285-287 (d), all real property in North Carolina is subject to listing and valuation annually as it exists on January 1. Real Property assessments are based on market values as of the date of the last countywide reappraisal in 2022.

Prints best in landscape mode