Guilford County North Carolina
Home   County Home   Tax Dept Home   Tax Bills   Maps   Tax Rates

Guilford County Real Property Data          

Building Summary

Data last updated on: 4/3/2026     Ownership current as of: 4/2/2026     Tax Year: 2026
REID 24502

PIN # 7845-71-9945

Location Address Property Description
703 REDBUD DR STARMOUNT FOREST BK2133-63 LO:L2 &PT L4 BL:9 PL:23-39
   
Property Owner Owner's Mailing Address
KRUMROY, TAYLOR ROSS;KRUMROY, JENNIFER LYNN
703 REDBUD DR
GREENSBORO NC 27410
Parcel
Buildings
Misc Improvements
Land
Deeds
Notes
Sales
Photos
Tax Bill
Map
Building Location Address
703 REDBUD DR
Card   of  1
Building Details

Building Type 01-SFR-CONST
Building Use 01-SFR
Units 1
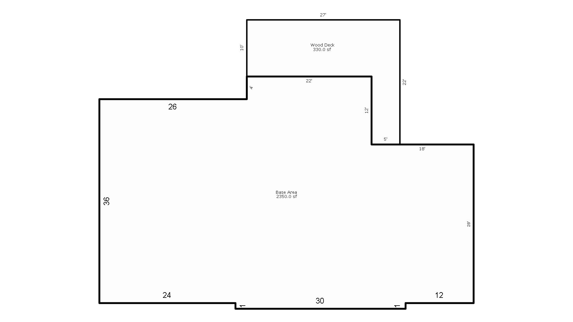
Living Area (SQFT) 3032
Number of Stories 1.00
Style RANCH W/BASEMENT
Foundation CONTFOOT
Exterior FACE BRK
Const Type Gable
Heating FORCED AIR-DUCTED
Air Cond CENTRAL
Plumbing Baths (Full):   2
Baths (Half):   1
Extra Fixtures:   0
Total Plumbing Fixtures:   8 
Bedrooms 3
Main Body (SQFT) 2350
Building Description

Year Built 1958
Additions 4
Effective Year 2015
Remodeled 0
Interior Adj.
Other Features
Building Total & Improvement Details

Grade B+5 130%
Percentage Complete 100
Total Adjusted Replacement Cost New $541,313
Physical Depreciation (% Bad) 0%
Depreciated Value $481,769
Economic Depreciation (% Bad) 0%
Functional Depreciation (% Bad) 0%
Total Depreciated Value $481,769
Market Area Factor 1.00
Building Value $481,800
Misc Improvements Value $4,100
Total Improvement Value $485,900

Assessed Land Value $110,000
   
Assessed Total Value $595,900



Addition Summary 
StoryTypeCodeArea
1.00 Wood Deck WDD0 330
1.00 Basement, Unfinished UBM0 514
1.00 Attic, Unfinished UAT0 594
1.00 Basement, Finished FBM0 682
 
Other Improvements 
UnitsDescriptionItemCodeYear% BadValue
40x10 DIMENSIONS CARPORT 2005 63 4100
 


Building Sketch
Photograph
Building Sketch Building Photo
(Click sketch for bigger image)





Per North Carolina General Statute 105-285-287 (d), all real property in North Carolina is subject to listing and valuation annually as it exists on January 1. Real Property assessments are based on market values as of the date of the last countywide reappraisal in 2026.

Prints best in landscape mode