Guilford County North Carolina
Home   County Home   Tax Dept Home   Tax Bills   Maps   Tax Rates

Guilford County Real Property Data          

Building Summary

Data last updated on: 4/3/2026     Ownership current as of: 4/2/2026     Tax Year: 2026
REID 24536

PIN # 7845-62-9212

Location Address Property Description
4315 DOGWOOD DR 8 B10 SEC 5 PB27-100 STARMOUNT FRS PL:27-100
   
Property Owner Owner's Mailing Address
MCCLURE, GEOFFREY L;MCCLURE, JENNIFER
4315 DOGWOOD DR
GREENSBORO NC 27410
Parcel
Buildings
Misc Improvements
Land
Deeds
Notes
Sales
Photos
Tax Bill
Map
Building Location Address
4315 DOGWOOD DR
Card   of  1
Building Details

Building Type 01-SFR-CONST
Building Use 01-SFR
Units 1
Living Area (SQFT) 2118
Number of Stories 1.00
Style 1.0 STORY
Foundation CONTFOOT
Exterior FACE BRK
Const Type
Heating FORCED AIR-DUCTED
Air Cond CENTRAL
Plumbing Baths (Full):   2
Baths (Half):   0
Extra Fixtures:   0
Total Plumbing Fixtures:   6 
Bedrooms 3
Main Body (SQFT) 2118
Building Description

Year Built 1960
Additions 5
Effective Year 2005
Remodeled 0
Interior Adj.
Other Features
Building Total & Improvement Details

Grade B-5 120%
Percentage Complete 100
Total Adjusted Replacement Cost New $419,993
Physical Depreciation (% Bad) 0%
Depreciated Value $331,794
Economic Depreciation (% Bad) 0%
Functional Depreciation (% Bad) 0%
Total Depreciated Value $331,794
Market Area Factor 1.00
Building Value $331,800
Misc Improvements Value
Total Improvement Value $331,800

Assessed Land Value $110,000
   
Assessed Total Value $441,800



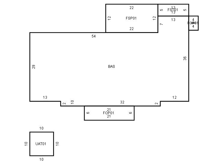
Addition Summary 
StoryTypeCodeArea
1.00 Porch, Open Fin FOP0 24
1.00 Porch, Open Fin FOP0 126
1.00 Porch, Screen Fin FSP0 264
1.00 Storage, Fin FST0 65
1.00 Attic, Unfinished UAT0 603
 
Other Improvements 
 


Building Sketch
Photograph
Building Sketch Building Photo
(Click sketch for bigger image)





Per North Carolina General Statute 105-285-287 (d), all real property in North Carolina is subject to listing and valuation annually as it exists on January 1. Real Property assessments are based on market values as of the date of the last countywide reappraisal in 2026.

Prints best in landscape mode