Guilford County North Carolina
Home   County Home   Tax Dept Home   Tax Bills   Maps   Tax Rates

Guilford County Real Property Data          

Building Summary

Data last updated on: 4/3/2026     Ownership current as of: 4/2/2026     Tax Year: 2026
REID 2486

PIN # 7864-98-1274

Location Address Property Description
523 HOMELAND AVE 22 HOMELAND AVE
   
Property Owner Owner's Mailing Address
TDH PARTNERS PROPERTIES LLC
PO BOX 2413
STAFFORD TX 77497
Parcel
Buildings
Misc Improvements
Land
Income
Deeds
Notes
Sales
Photos
Tax Bill
Map
Building Location Address
523 HOMELAND AVE
Card   of  1        Section   of  1
Building Details

Building Name
Primary Occupancy Type Residence and Motel
Primary Occupancy 12-352-Multiple Res
Primary Class C
Primary Quality Average
Year Built 1968
Effective Year 1987
Physical Depreciation (Rating) MSVPO - COMM ONLY
Physical Depreciation (% Bad) 44.00%
Economic Depreciation (% Bad) 0%
Functional Depreciation (% Bad) 0%
Gross Leasable Area (SQFT) 15976
Remodeled Year
Total Stories 2

Section Details

Occupancy Type Residence and Motel


Class C
Depreciation 44%
Depreciation MSVPO - COMM ONLY
Heat 3-Default Heating
Interior Finish DRYWALL/SHEETROCK
Occupancy 12-352-Multiple Res
Quality Average
Sprinkler No Sprinklers
Exterior Walls 805-Brick with Block
Air Conditioning CENTRAL
FIXTURES 54
Building Total & Improvement Details

Total Adjusted Replacement Cost New $1,786,952
Physical Depreciation (% Bad) 44.00%
Depreciated Value $1,000,693
Economic Depreciation (% Bad) 0%
Functional Depreciation (% Bad) 0%
Total Depreciated Value $1,000,693
Market Area Factor 1.00
Building Value $1,000,700
Misc Improvements Value $500
Total Improvement Value $1,001,200

Assessed Land Value $178,900
   
Assessed Total Value $1,435,076


Addition Summary 
StoryTypeCodeArea
1.00 Porch, Open Fin FOP0 218
 
Other Improvements 
UnitsDescriptionItemCodeYear% BadValue
7000 UNITS PAVING ASP 1994 88 500
 


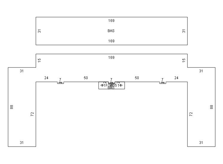
Building Sketch
Photograph
Building Sketch Photo is unavailable for this parcel.
(Click sketch for bigger image)





Per North Carolina General Statute 105-285-287 (d), all real property in North Carolina is subject to listing and valuation annually as it exists on January 1. Real Property assessments are based on market values as of the date of the last countywide reappraisal in 2026.

Prints best in landscape mode