Guilford County North Carolina
Home   County Home   Tax Dept Home   Tax Bills   Maps   Tax Rates

Guilford County Real Property Data          

Building Summary

Data last updated on: 4/24/2026     Ownership current as of: 4/23/2026     Tax Year: 2026
REID 3657

PIN # 7864-34-4411

Location Address Property Description
702 SPRING GARDEN ST PB 147-109 DOERNER & LALONDE SUB LO:1 PL:147-109
   
Property Owner Owner's Mailing Address
LI, JIAN
2049 BELMONT AVE
THE BRONX NY 10457
Parcel
Buildings
Misc Improvements
Land
Deeds
Notes
Sales
Photos
Tax Bill
Map
Building Location Address
702 SPRING GARDEN ST
Card   of  1
Building Details

Building Type 01-SFR-CONST
Building Use 01-SFR
Units 1
Living Area (SQFT) 1736
Number of Stories 2.00
Style 2.0 STORY
Foundation CONTFOOT
Exterior MASONITE
Const Type
Heating FORCED AIR-DUCTED
Air Cond CENTRAL
Plumbing Baths (Full):   4
Baths (Half):   0
Extra Fixtures:   4
Total Plumbing Fixtures:   16 
Bedrooms 4
Main Body (SQFT) 868
Building Description

Year Built 2003
Additions 4
Effective Year 2015
Remodeled 0
Interior Adj.
Other Features
Building Total & Improvement Details

Grade B-10 115%
Percentage Complete 100
Total Adjusted Replacement Cost New $286,516
Physical Depreciation (% Bad) 0%
Depreciated Value $254,999
Economic Depreciation (% Bad) 0%
Functional Depreciation (% Bad) 0%
Total Depreciated Value $254,999
Market Area Factor 1.20
Building Value $306,000
Misc Improvements Value
Total Improvement Value $306,000

Assessed Land Value $80,000
   
Assessed Total Value $386,000



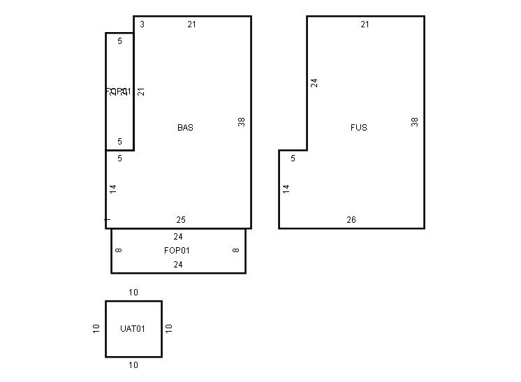
Addition Summary 
StoryTypeCodeArea
1.00 Porch, Open Fin FOP0 105
1.00 Porch, Open Fin FOP0 192
1.00 Upper Story Fin FUS 868
1.00 Attic, Unfinished UAT0 353
 
Other Improvements 
 


Building Sketch
Photograph
Building Sketch Building Photo
(Click sketch for bigger image)





Per North Carolina General Statute 105-285-287 (d), all real property in North Carolina is subject to listing and valuation annually as it exists on January 1. Real Property assessments are based on market values as of the date of the last countywide reappraisal in 2026.

Prints best in landscape mode