Guilford County North Carolina
Home   County Home   Tax Dept Home   Tax Bills   Maps   Tax Rates

Guilford County Real Property Data          

Building Summary

Data last updated on: 4/24/2026     Ownership current as of: 4/23/2026     Tax Year: 2026
REID 3680

PIN # 7864-23-8929

Location Address Property Description
817 SPRING GARDEN ST SEE DEED
   
Property Owner Owner's Mailing Address
KENNEDY, MARVIN ANDREW;KENNEDY, SUSAN S
1106 WESTMINISTER DR
GREENSBORO NC 27410
Parcel
Buildings
Misc Improvements
Land
Deeds
Notes
Sales
Photos
Tax Bill
Map
Building Location Address
817 SPRING GARDEN ST
Card   of  1
Building Details

Building Type 01-SFR-CONST
Building Use 01-SFR
Units 1
Living Area (SQFT) 1264
Number of Stories 1.00
Style RANCH W/BASEMENT
Foundation CONTFOOT
Exterior FACE BRK
Const Type
Heating FORCED AIR-DUCTED
Air Cond CENTRAL
Plumbing Baths (Full):   1
Baths (Half):   1
Extra Fixtures:   0
Total Plumbing Fixtures:   5 
Bedrooms 3
Main Body (SQFT) 1264
Building Description

Year Built 1926
Additions 3
Effective Year 2005
Remodeled 0
Interior Adj.
Other Features
Building Total & Improvement Details

Grade C+10 110%
Percentage Complete 100
Total Adjusted Replacement Cost New $236,173
Physical Depreciation (% Bad) 0%
Depreciated Value $186,577
Economic Depreciation (% Bad) 0%
Functional Depreciation (% Bad) 0%
Total Depreciated Value $186,577
Market Area Factor 1.20
Building Value $223,900
Misc Improvements Value $4,400
Total Improvement Value $228,300

Assessed Land Value $39,000
   
Assessed Total Value $267,300



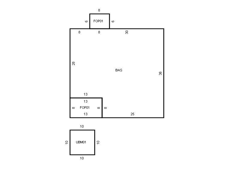
Addition Summary 
StoryTypeCodeArea
1.00 Porch, Open Fin FOP0 48
1.00 Porch, Open Fin FOP0 104
1.00 Basement, Unfinished UBM0 316
 
Other Improvements 
UnitsDescriptionItemCodeYear% BadValue
12x20 DIMENSIONS GARAGE 1989 74 4400
 


Building Sketch
Photograph
Building Sketch Building Photo
(Click sketch for bigger image)





Per North Carolina General Statute 105-285-287 (d), all real property in North Carolina is subject to listing and valuation annually as it exists on January 1. Real Property assessments are based on market values as of the date of the last countywide reappraisal in 2026.

Prints best in landscape mode