Guilford County North Carolina
Home   County Home   Tax Dept Home   Tax Bills   Maps   Tax Rates

Guilford County Real Property Data          

Building Summary

Data last updated on: 4/24/2026     Ownership current as of: 4/23/2026     Tax Year: 2026
REID 3693

PIN # 7864-23-7634

Location Address Property Description
621 S MENDENHALL ST 8&9 BLK 2 PB3-3 JACKSON PROP PL:3-3
   
Property Owner Owner's Mailing Address
LOFTIS, AMANDA;LOFTIS, HUNTER
808 PEBBLE DR
GREENSBORO NC 27410
Parcel
Buildings
Misc Improvements
Land
Deeds
Notes
Sales
Photos
Tax Bill
Map
Building Location Address
621 S MENDENHALL ST
Card   of  1
Building Details

Building Type 01-SFR-CONST
Building Use 01-SFR
Units 1
Living Area (SQFT) 1768
Number of Stories 1.70
Style 2.0 STORY
Foundation CONTFOOT
Exterior FRAME
Const Type
Heating FORCED AIR-DUCTED
Air Cond CENTRAL
Plumbing Baths (Full):   1
Baths (Half):   1
Extra Fixtures:   0
Total Plumbing Fixtures:   5 
Bedrooms 3
Main Body (SQFT) 1040
Building Description

Year Built 1914
Additions 2
Effective Year 2015
Remodeled 0
Interior Adj.
Other Features
Building Total & Improvement Details

Grade B-10 115%
Percentage Complete 100
Total Adjusted Replacement Cost New $278,024
Physical Depreciation (% Bad) 0%
Depreciated Value $247,441
Economic Depreciation (% Bad) 0%
Functional Depreciation (% Bad) 0%
Total Depreciated Value $247,441
Market Area Factor 1.20
Building Value $296,900
Misc Improvements Value $2,400
Total Improvement Value $299,300

Assessed Land Value $60,000
   
Assessed Total Value $359,300



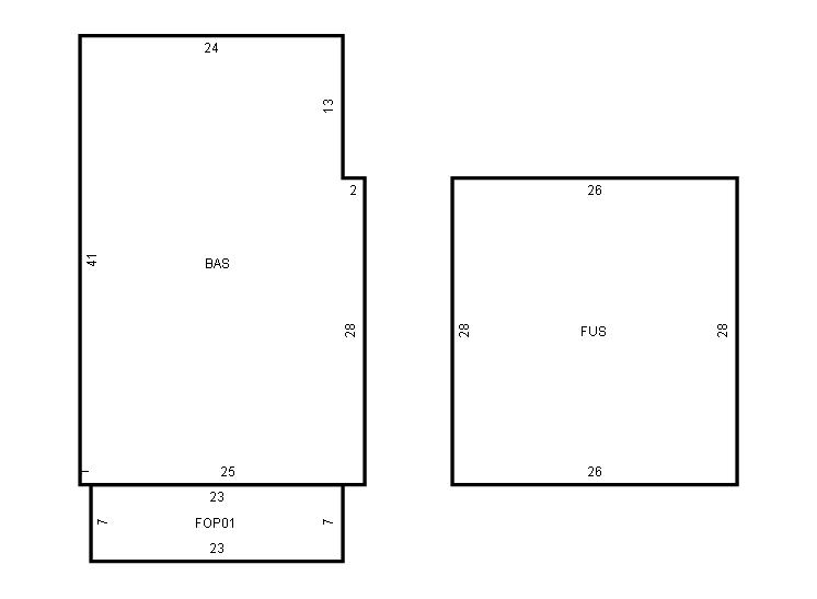
Addition Summary 
StoryTypeCodeArea
1.00 Porch, Open Fin FOP0 161
1.00 Upper Story Fin FUS 728
 
Other Improvements 
UnitsDescriptionItemCodeYear% BadValue
14x20 DIMENSIONS STORAGE BUILDING 2010 80 2400
 


Building Sketch
Photograph
Building Sketch Building Photo
(Click sketch for bigger image)





Per North Carolina General Statute 105-285-287 (d), all real property in North Carolina is subject to listing and valuation annually as it exists on January 1. Real Property assessments are based on market values as of the date of the last countywide reappraisal in 2026.

Prints best in landscape mode