Guilford County North Carolina
Home   County Home   Tax Dept Home   Tax Bills   Maps   Tax Rates

Guilford County Real Property Data          

Building Summary

Data last updated on: 4/23/2026     Ownership current as of: 4/22/2026     Tax Year: 2026
REID 430

PIN # 7864-64-1671.042

Location Address Property Description
121 2B W MCGEE ST B206&B306 CPB 13-43-47 MCGEE LOFTS PL:13-43
   
Property Owner Owner's Mailing Address
FLEMING, PAUL LUCAS
121 W MCGEE ST UNIT 2B
GREENSBORO NC 27401
Parcel
Buildings
Misc Improvements
Land
Deeds
Notes
Sales
Photos
Tax Bill
Map
Building Location Address
121 W MCGEE ST
Card   of  1
Building Details

Building Type 03-CONDO-CONST
Building Use 04-CONDO
Units 1
Living Area (SQFT) 1685
Number of Stories 1.00
Style UNKNOWN
Foundation SPRDFOOT
Exterior FACE BRK
Const Type
Heating FORCED AIR-DUCTED
Air Cond CENTRAL
Plumbing Baths (Full):   2
Baths (Half):   0
Extra Fixtures:   0
Total Plumbing Fixtures:   6 
Bedrooms 2
Main Body (SQFT) 1685
Building Description

Year Built 1921
Additions 0
Effective Year 2014
Remodeled 0
Interior Adj.
Other Features
Building Total & Improvement Details

Grade A-5 145%
Percentage Complete 100
Total Adjusted Replacement Cost New $370,387
Physical Depreciation (% Bad) 0%
Depreciated Value $325,941
Economic Depreciation (% Bad) 0%
Functional Depreciation (% Bad) 0%
Total Depreciated Value $325,941
Market Area Factor 1.00
Building Value $325,900
Misc Improvements Value
Total Improvement Value $325,900

Assessed Land Value $40,000
   
Assessed Total Value $365,900



Addition Summary 
 
Other Improvements 
 


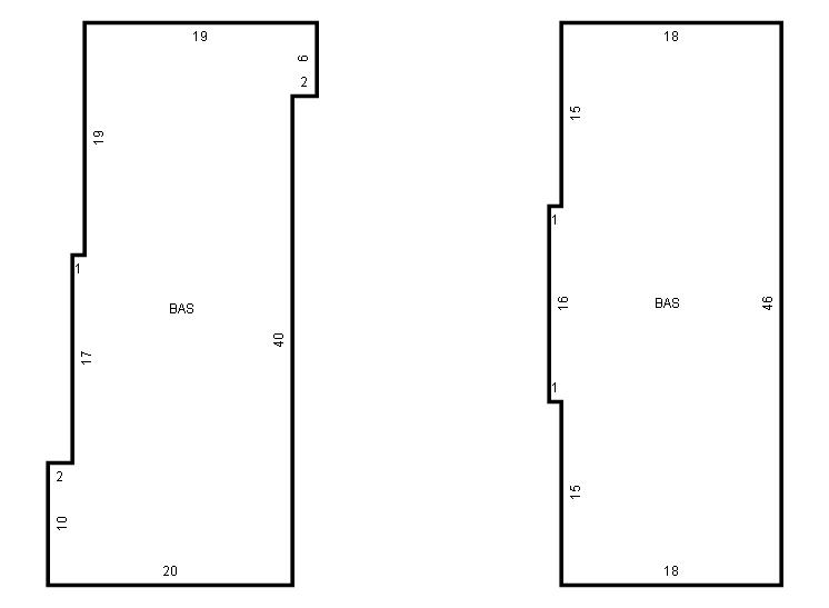
Building Sketch
Photograph
Building Sketch Building Photo
(Click sketch for bigger image)





Per North Carolina General Statute 105-285-287 (d), all real property in North Carolina is subject to listing and valuation annually as it exists on January 1. Real Property assessments are based on market values as of the date of the last countywide reappraisal in 2026.

Prints best in landscape mode