Guilford County North Carolina
Home   County Home   Tax Dept Home   Tax Bills   Maps   Tax Rates

Guilford County Real Property Data          

Building Summary

Data last updated on: 4/3/2026     Ownership current as of: 4/2/2026     Tax Year: 2026
REID 45632

PIN # 7876-27-5697

Location Address Property Description
1621 GLENSIDE DR GLENSIDE DR APARTMENTS
   
Property Owner Owner's Mailing Address
ECA GLENSIDE LLC
7208 FALLS OF NEUSE RD STE 210
RALEIGH NC 27614
Parcel
Buildings
Misc Improvements
Land
Income
Deeds
Notes
Sales
Photos
Tax Bill
Map
Building Location Address
1621 GLENSIDE DR
Card   of  11        Section   of  1
Building Details

Building Name THE POINTE AT WHITE OAK
Primary Occupancy Type Residence and Motel
Primary Occupancy 12-352-Multiple Res
Primary Class D
Primary Quality Fair
Year Built 1974
Effective Year 1996
Physical Depreciation (Rating) MSVPO - COMM ONLY
Physical Depreciation (% Bad) 45.00%
Economic Depreciation (% Bad) 0%
Functional Depreciation (% Bad) 0%
Gross Leasable Area (SQFT) 5544
Remodeled Year
Total Stories 2

Section Details

Occupancy Type Residence and Motel


Air Conditioning CENTRAL
FIXTURES 18
Class D
Depreciation 45%
Depreciation MSVPO - COMM ONLY
Quality Fair
Sprinkler No Sprinklers
Exterior Walls 895-Stud -Vinyl Sidi
Heat 3-Default Heating
Interior Finish DRYWALL/SHEETROCK
Occupancy 12-352-Multiple Res
Building Total & Improvement Details

Total Adjusted Replacement Cost New $550,506
Physical Depreciation (% Bad) 45.00%
Depreciated Value $302,779
Economic Depreciation (% Bad) 0%
Functional Depreciation (% Bad) 0%
Total Depreciated Value $302,779
Market Area Factor 1.00
Building Value $302,800
Misc Improvements Value $2,000
Total Improvement Value $304,800

Assessed Land Value $743,200
   
Assessed Total Value $3,728,744


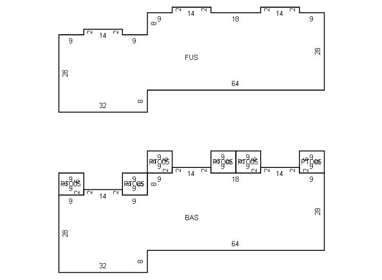
Addition Summary 
StoryTypeCodeArea
1.00 Patio PTO0 432
1.00 Upper Story Fin FUS 2772
 
Other Improvements 
UnitsDescriptionItemCodeYear% BadValue
25200 UNITS PAVING ASP 1990 88 2000
 


Building Sketch
Photograph
Building Sketch Building Photo
(Click sketch for bigger image)





Per North Carolina General Statute 105-285-287 (d), all real property in North Carolina is subject to listing and valuation annually as it exists on January 1. Real Property assessments are based on market values as of the date of the last countywide reappraisal in 2026.

Prints best in landscape mode