Guilford County North Carolina
Home   County Home   Tax Dept Home   Tax Bills   Maps   Tax Rates

Guilford County Real Property Data          

Building Summary

Data last updated on: 4/3/2026     Ownership current as of: 4/2/2026     Tax Year: 2026
REID 47430

PIN # 7866-88-6492

Location Address Property Description
3822 MIZELL RD 23.69 AC 1 PB 74-20 WINDLAKE APTS PL:74-20
   
Property Owner Owner's Mailing Address
OREI THE EDGE PROPERTY OWNER LLC
1200 BRICKELL AVE PH 2020
MIAMI FL 33131
Parcel
Buildings
Misc Improvements
Land
Income
Deeds
Notes
Sales
Photos
Tax Bill
Map
Building Location Address
3822 MIZELL RD
Card   of  14        Section   of  2
Building Details

Building Name THE ENCLAVE AT 38 TWENTY TWO
Primary Occupancy Type Residence and Motel
Primary Occupancy 12-352-Multiple Res
Primary Class C
Primary Quality Average
Year Built 1984
Effective Year 1996
Physical Depreciation (Rating) MSVPO - COMM ONLY
Physical Depreciation (% Bad) 26.00%
Economic Depreciation (% Bad) 0%
Functional Depreciation (% Bad) 0%
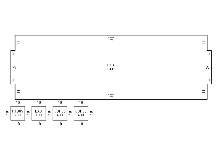
Gross Leasable Area (SQFT) 19518
Remodeled Year
Total Stories 3

Section Details

Occupancy Type Residence and Motel


Air Conditioning CENTRAL
FIXTURES 69
Class C
Depreciation 26%
Depreciation MSVPO - COMM ONLY
Heat 3-Default Heating
Interior Finish DRYWALL/SHEETROCK
Occupancy 12-352-Multiple Res
Quality Average
Sprinkler No Sprinklers
Exterior Walls 887-Stud -Hardboard
Building Total & Improvement Details

Total Adjusted Replacement Cost New $1,881,481
Physical Depreciation (% Bad) 26.00%
Depreciated Value $1,392,295
Economic Depreciation (% Bad) 0%
Functional Depreciation (% Bad) 0%
Total Depreciated Value $1,392,295
Market Area Factor 1.00
Building Value $1,392,300
Misc Improvements Value $94,400
Total Improvement Value $1,486,700

Assessed Land Value $2,670,300
   
Assessed Total Value $39,067,086


Addition Summary 
StoryTypeCodeArea
1.00 Patio PTO0 200
1.00 Porch, Open Unfin UOP0 400
 
Other Improvements 
UnitsDescriptionItemCodeYear% BadValue
204000 UNITS PAVING ASP 1994 88 15900
44 UNITS FIREPLACE AVERAGE 1979 88 15800
20x12 DIMENSIONS SHOP/EQUIPMENT SHED 1990 87 1700
40x20 DIMENSIONS POOL/AVERAGE QUALITY SWIMMING POOL 1994 88 7200
114x110 DIMENSIONS TENNIS CRT 1994 90 9000
100 UNITS FIREPLACE AVERAGE 1979 88 36000
40x20 DIMENSIONS SHOP/EQUIPMENT SHED 1990 87 8800
 


Building Sketch
Photograph
Building Sketch Building Photo
(Click sketch for bigger image)





Per North Carolina General Statute 105-285-287 (d), all real property in North Carolina is subject to listing and valuation annually as it exists on January 1. Real Property assessments are based on market values as of the date of the last countywide reappraisal in 2026.

Prints best in landscape mode