Guilford County North Carolina
Home   County Home   Tax Dept Home   Tax Bills   Maps   Tax Rates

Guilford County Real Property Data          

Building Summary

Data last updated on: 4/24/2026     Ownership current as of: 4/23/2026     Tax Year: 2026
REID 6103

PIN # 7864-24-3224

Location Address Property Description
6 SPRINGDALE CT 6 PB 4-59 PL:4-59
   
Property Owner Owner's Mailing Address
PHILLIPS, KATE C;PHILLIPS, DAVE
6 SPRINGDALE CT
GREENSBORO NC 27403
Parcel
Buildings
Misc Improvements
Land
Deeds
Notes
Sales
Photos
Tax Bill
Map
Building Location Address
6 SPRINGDALE CT
Card   of  1
Building Details

Building Type 01-SFR-CONST
Building Use 08-DUPLEX/TRIPLEX
Units 1
Living Area (SQFT) 2576
Number of Stories 2.00
Style 2.0 STORY
Foundation CONTFOOT
Exterior FRAME
Const Type
Heating STEAM
Air Cond NONE
Plumbing Baths (Full):   3
Baths (Half):   0
Extra Fixtures:   0
Total Plumbing Fixtures:   9 
Bedrooms 3
Main Body (SQFT) 1301
Building Description

Year Built 1893
Additions 4
Effective Year 1995
Remodeled 0
Interior Adj.
Other Features
Building Total & Improvement Details

Grade C 100%
Percentage Complete 100
Total Adjusted Replacement Cost New $373,059
Physical Depreciation (% Bad) 0%
Depreciated Value $216,374
Economic Depreciation (% Bad) 0%
Functional Depreciation (% Bad) 0%
Total Depreciated Value $216,374
Market Area Factor 1.20
Building Value $259,600
Misc Improvements Value
Total Improvement Value $259,600

Assessed Land Value $80,000
   
Assessed Total Value $339,600



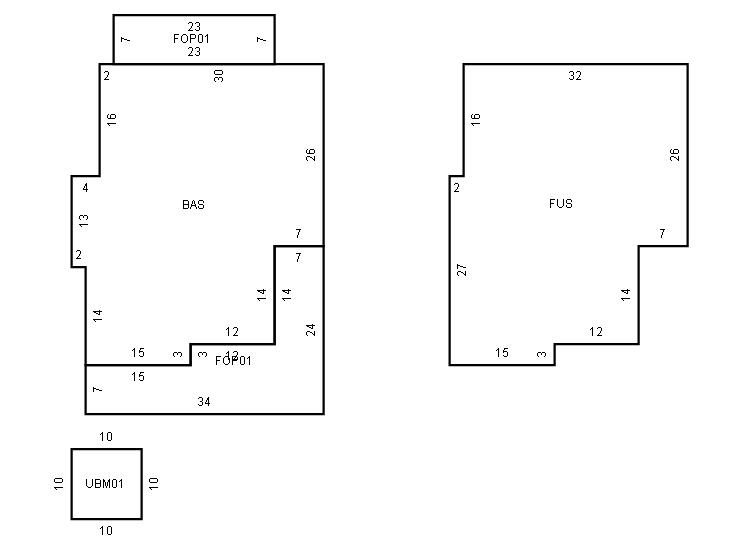
Addition Summary 
StoryTypeCodeArea
1.00 Porch, Open Fin FOP0 161
1.00 Porch, Open Fin FOP0 393
1.00 Upper Story Fin FUS 1275
1.00 Basement, Unfinished UBM0 650
 
Other Improvements 
 


Building Sketch
Photograph
Building Sketch Building Photo
(Click sketch for bigger image)





Per North Carolina General Statute 105-285-287 (d), all real property in North Carolina is subject to listing and valuation annually as it exists on January 1. Real Property assessments are based on market values as of the date of the last countywide reappraisal in 2026.

Prints best in landscape mode