Guilford County North Carolina
Home   County Home   Tax Dept Home   Tax Bills   Maps   Tax Rates

Guilford County Real Property Data          

Building Summary

Data last updated on: 4/3/2026     Ownership current as of: 4/2/2026     Tax Year: 2026
REID 9424

PIN # 7864-17-1249

Location Address Property Description
301 E LAKE DR 7-8 B11 PB9-22 W MKT TERR PL:9-22
   
Property Owner Owner's Mailing Address
LAKE DR LLC
109 EAST MOUNTAIN ST STE D
KERNERSVILLE NC 27284
Parcel
Buildings
Misc Improvements
Land
Income
Deeds
Notes
Sales
Photos
Tax Bill
Map
Building Location Address
301 E LAKE DR
Card   of  1        Section   of  1
Building Details

Building Name W MARKET TERRACE
Primary Occupancy Type Residence and Motel
Primary Occupancy 12-352-Multiple Res
Primary Class C
Primary Quality Average
Year Built 1955
Effective Year 2000
Physical Depreciation (Rating) MSVPO - COMM ONLY
Physical Depreciation (% Bad) 20.00%
Economic Depreciation (% Bad) 0%
Functional Depreciation (% Bad) 0%
Gross Leasable Area (SQFT) 5372
Remodeled Year
Total Stories 1

Section Details

Occupancy Type Residence and Motel


Air Conditioning NONE
FIXTURES 21
Class C
Depreciation 20%
Depreciation MSVPO - COMM ONLY
Heat 3-Default Heating
Interior Finish DRYWALL/SHEETROCK
Occupancy 12-352-Multiple Res
Quality Average
Sprinkler No Sprinklers
Exterior Walls 805-Brick with Block
Building Total & Improvement Details

Total Adjusted Replacement Cost New $645,769
Physical Depreciation (% Bad) 20.00%
Depreciated Value $516,616
Economic Depreciation (% Bad) 0%
Functional Depreciation (% Bad) 0%
Total Depreciated Value $516,616
Market Area Factor 1.00
Building Value $516,600
Misc Improvements Value $900
Total Improvement Value $517,500

Assessed Land Value $427,000
   
Assessed Total Value $670,155


Addition Summary 
 
Other Improvements 
UnitsDescriptionItemCodeYear% BadValue
10x14 DIMENSIONS STORAGE BUILDING 1992 90 900
 


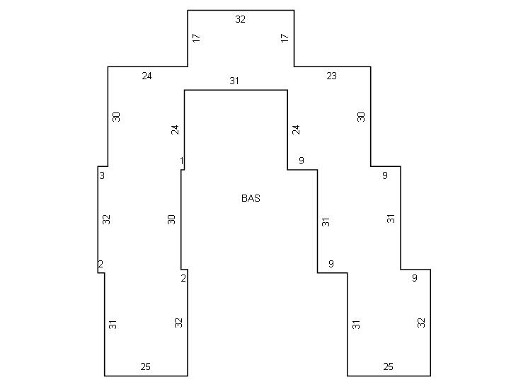
Building Sketch
Photograph
Building Sketch Photo is unavailable for this parcel.
(Click sketch for bigger image)





Per North Carolina General Statute 105-285-287 (d), all real property in North Carolina is subject to listing and valuation annually as it exists on January 1. Real Property assessments are based on market values as of the date of the last countywide reappraisal in 2026.

Prints best in landscape mode