Guilford County North Carolina
Home   County Home   Tax Dept Home   Tax Bills   Maps   Tax Rates

Guilford County Real Property Data          

Building Summary

Data last updated on: 4/1/2026     Ownership current as of: 3/31/2026     Tax Year: 2026
REID 98272

PIN # 7814-78-1163

Location Address Property Description
605 S REGIONAL RD MOTEL 6 2 PB 75-48 GSO AIRPT MOT PL:75-48
   
Property Owner Owner's Mailing Address
STAR SKY HOTELS LLC
100 CENTURY PKWY STE 110
MOUNT LAUREL NJ 08054
Parcel
Buildings
Misc Improvements
Land
Income
Deeds
Notes
Sales
Photos
Tax Bill
Map
Building Location Address
605 S REGIONAL RD
Card   of  1        Section   of  2
Building Details

Building Name MOTEL 6
Primary Occupancy Type Apartments, Hotels
Primary Occupancy 11-595-Hotel, Limite
Primary Class C
Primary Quality Average
Year Built 1985
Effective Year 1990
Physical Depreciation (Rating) MSVPO - COMM ONLY
Physical Depreciation (% Bad) 61.00%
Economic Depreciation (% Bad) 0%
Functional Depreciation (% Bad) 0%
Gross Leasable Area (SQFT) 53950
Remodeled Year
Total Stories 1

Section Details

Occupancy Type Apartments, Hotels


Air Conditioning WALL UNIT
FIXTURES 378
Class C
Depreciation 61%
Depreciation MSVPO - COMM ONLY
Heat 606-Space Heater
Interior Finish DRYWALL/SHEETROCK
Occupancy 11-595-Hotel, Limite
Quality Average
Sprinkler No Sprinklers
Exterior Walls 895-Stud -Vinyl Sidi
Building Total & Improvement Details

Total Adjusted Replacement Cost New $6,432,809
Physical Depreciation (% Bad) 61.00%
Depreciated Value $2,508,796
Economic Depreciation (% Bad) 0%
Functional Depreciation (% Bad) 0%
Total Depreciated Value $2,508,796
Market Area Factor 1.00
Building Value $2,508,800
Misc Improvements Value $88,900
Total Improvement Value $2,597,700

Assessed Land Value $1,292,900
   
Assessed Total Value $4,024,120


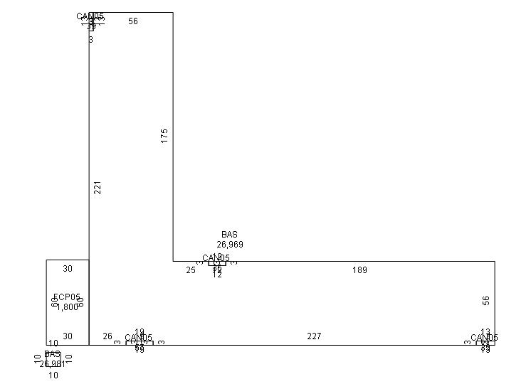
Addition Summary 
StoryTypeCodeArea
1.00 Canopy CAN0 57
1.00 Canopy CAN0 39
1.00 Canopy CAN0 36
1.00 Canopy CAN0 39
1.00 Carport, Finished FCP0 1800
 
Other Improvements 
UnitsDescriptionItemCodeYear% BadValue
40x20 DIMENSIONS POOL/CUSTOM QUALITY SWIMMING POOL 2006 80 14400
51000 UNITS 10-PAVING-CON4 2006 80 74500
 


Building Sketch
Photograph
Building Sketch Photo is unavailable for this parcel.
(Click sketch for bigger image)





Per North Carolina General Statute 105-285-287 (d), all real property in North Carolina is subject to listing and valuation annually as it exists on January 1. Real Property assessments are based on market values as of the date of the last countywide reappraisal in 2026.

Prints best in landscape mode