Guilford County North Carolina
Home   County Home   Tax Dept Home   Tax Bills   Maps   Tax Rates

Guilford County Real Property Data          

Building Summary

Data last updated on: 4/1/2026     Ownership current as of: 3/31/2026     Tax Year: 2026
REID 98379

PIN # 7814-57-5778

Location Address Property Description
7623 THORNDIKE RD CANDLEWOOD SUITES 3 PB 93-96 PL:93-96
   
Property Owner Owner's Mailing Address
GCMS LODGING PARTNERS LLC
3501 SW FAIRLAWN RD STE 200
TOPEKA KS 66614
Parcel
Buildings
Misc Improvements
Land
Income
Deeds
Notes
Sales
Photos
Tax Bill
Map
Building Location Address
7623 THORNDIKE RD
Card   of  1        Section   of  1
Building Details

Building Name MAINSTAY SUITES
Primary Occupancy Type Apartments, Hotels
Primary Occupancy 11-595-Hotel, Limite
Primary Class C
Primary Quality Average
Year Built 1998
Effective Year 2006
Physical Depreciation (Rating) MSVPO - COMM ONLY
Physical Depreciation (% Bad) 23.00%
Economic Depreciation (% Bad) 0%
Functional Depreciation (% Bad) 0%
Gross Leasable Area (SQFT) 61011
Remodeled Year
Total Stories 1

Section Details

Occupancy Type Apartments, Hotels


Air Conditioning WALL UNIT
FIXTURES 370
Class C
Depreciation 23%
Depreciation MSVPO - COMM ONLY
Heat 606-Space Heater
Interior Finish DRYWALL/SHEETROCK
Occupancy 11-595-Hotel, Limite
Quality Average
Sprinkler 681-Sprinklers
Exterior Walls 805-Brick with Block
Building Total & Improvement Details

Total Adjusted Replacement Cost New $7,355,152
Physical Depreciation (% Bad) 23.00%
Depreciated Value $5,663,468
Economic Depreciation (% Bad) 0%
Functional Depreciation (% Bad) 0%
Total Depreciated Value $5,663,468
Market Area Factor 1.00
Building Value $5,663,500
Misc Improvements Value $75,800
Total Improvement Value $5,739,300

Assessed Land Value $761,500
   
Assessed Total Value $5,841,465


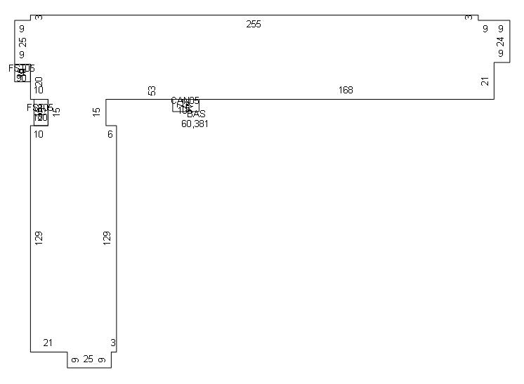
Addition Summary 
StoryTypeCodeArea
1.00 Storage, Fin FST0 630
1.00 Canopy CAN0 315
 
Other Improvements 
UnitsDescriptionItemCodeYear% BadValue
3 UNITS ELEVATOR PASSENGER/FLOOR STOPS 2000 52 43200
50160 UNITS PAVING ASP 2006 80 32600
 


Building Sketch
Photograph
Building Sketch Building Photo
(Click sketch for bigger image)





Per North Carolina General Statute 105-285-287 (d), all real property in North Carolina is subject to listing and valuation annually as it exists on January 1. Real Property assessments are based on market values as of the date of the last countywide reappraisal in 2026.

Prints best in landscape mode