Guilford County North Carolina
Home   County Home   Tax Dept Home   Tax Bills   Maps   Tax Rates

Guilford County Real Property Data          

Building Summary

Data last updated on: 10/3/2025     Ownership current as of: 10/2/2025     Tax Year: 2025
REID 99733

PIN # 7825-10-5947

Location Address Property Description
7 LOCKHEED CT 2.53AC 2 SEC 9C PB113-39 FRIENDSHIP IN PL:113-39
   
Property Owner Owner's Mailing Address
BENGAL PROPERTIES LLC
PO BOX 7161
HIGH POINT NC 27264
Parcel
Buildings
Misc Improvements
Land
Deeds
Notes
Sales
Photos
Tax Bill
Map
Building Location Address
7 LOCKHEED CT
Card   of  1        Section   of  1
Building Details

Building Name
Primary Occupancy Type Garages, Industrial
Primary Occupancy 14-494-Industrials,
Primary Class C
Primary Quality Good
Year Built 1994
Effective Year 2004
Physical Depreciation (Rating) A
Physical Depreciation (% Bad) 23.00%
Economic Depreciation (% Bad) 0%
Functional Depreciation (% Bad) 0%
Gross Leasable Area (SQFT) 21704
Remodeled Year
Total Stories 1

Section Details

Occupancy Type Garages, Industrial


Quality Good
Sprinkler No Sprinklers
Exterior Walls 916-Single -Metal on
Air Conditioning NONE
FIXTURES 8
Class C
Depreciation 19%
Depreciation A
Heat 3-Default Heating
Interior Finish MINIMUM
Occupancy 14-494-Industrials,
Building Total & Improvement Details

Total Adjusted Replacement Cost New $1,344,031
Physical Depreciation (% Bad) 23.00%
Depreciated Value $1,076,184
Economic Depreciation (% Bad) 0%
Functional Depreciation (% Bad) 0%
Total Depreciated Value $1,076,184
Market Area Factor 1.00
Building Value $1,076,200
Misc Improvements Value $19,000
Total Improvement Value $1,095,200

Assessed Land Value $291,000
   
Assessed Total Value $1,386,200


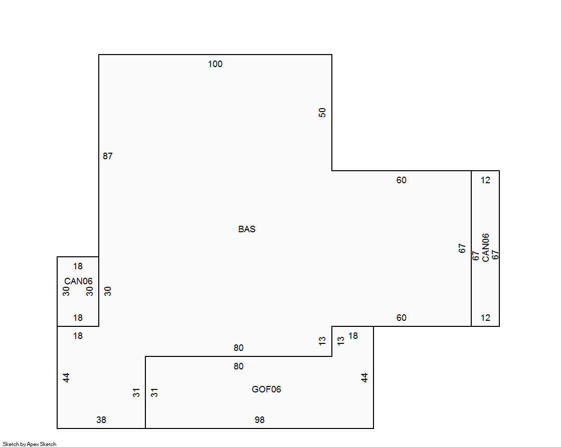
Addition Summary 
StoryTypeCodeArea
1.00 Canopy CAN0 1344
1.00 Office, Good GOF0 3272
 
Other Improvements 
UnitsDescriptionItemCodeYear% BadValue
12x24 DIMENSIONS STORAGE BUILDING 2006 45 3600
35x20 DIMENSIONS STORAGE BUILDING 2006 45 6900
5000 UNITS PAVING ASP 2006 60 4500
920 UNITS METAL FENCE-COMMERCIAL 2006 45 4000
 


Building Sketch
Photograph
Building Sketch Building Photo
(Click sketch for bigger image)





Per North Carolina General Statute 105-285-287 (d), all real property in North Carolina is subject to listing and valuation annually as it exists on January 1. Real Property assessments are based on market values as of the date of the last countywide reappraisal in 2022.

Prints best in landscape mode