HENDERSON COUNTY BANNER

Building Summary

Data last updated on: 3/25/2026     Ownership current as of: 3/18/2026     Tax Year: 2026
REID 9904052

PIN # 9538-39-0887

Location Address Property Description
121 MOUNTAIN VALLEY DR MOUNTAIN VALLEY LO:12 PL:A-215
   
Property Owner Owner's Mailing Address
ESTEVES-MUXO, KARLOS;HERNANDEZ, DELFIN ANTONIO
121 MOUNTAIN VALLEY DR
HENDERSONVILLE NC 28739
Parcel
Buildings
Misc Improvements
Land
Deeds
Notes
Sales
Photos
Tax Bill
Map
Building Location Address
121 MOUNTAIN VALLEY DR
Card   of  1
Building Details

Building Type SINGLE FAMILY
Building Use MA-SINGLE FAMILY
Units 0
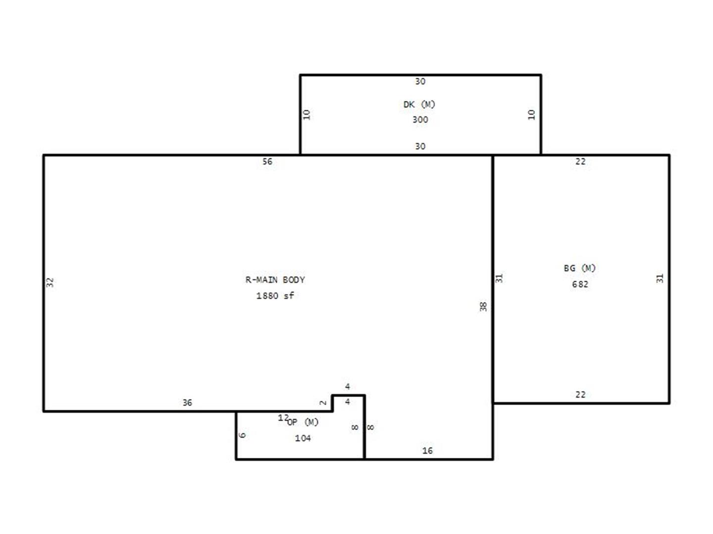
Living Area (SQFT) 1880
Number of Stories 1.00
Style CONVENTIONAL
Foundation CRAWL
Exterior BRICK
Const Type NONE
Heating FORCED AIR
Air Cond 100% CENTRAL A/C
Plumbing Baths (Full):   2
Baths (Half):   0
Extra Fixtures:   2
Total Plumbing Fixtures:   8 
Main Body (SQFT) 1880
Building Description

Year Built 1986
Additions 3
Effective Year 1999
Remodeled 0
Interior Adj.
Other Features
Building Total & Improvement Details

Grade B 128%
Percentage Complete 100
Total Adjusted Replacement Cost New $487,639
Physical Depreciation (% Bad) 0%
Depreciated Value $370,606
Economic Depreciation (% Bad) 0%
Functional Depreciation (% Bad) 0%
Total Depreciated Value $370,606
Market Area Factor 1.00
Building Value $370,600
Misc Improvements Value
Total Improvement Value $370,600

Assessed Land Value $80,500
   
Assessed Total Value $451,100



Addition Summary 
StoryTypeCodeArea
1.00 DECK (MAIN) MAIN 300
1.00 BRICK ATTACHED GARAGE (MAIN) MAIN 682
1.00 OPEN FRAME PORCH (MAIN) MAIN 104
 
Other Improvements 
 


Building Sketch
Photograph
Building Sketch Building Photo
(Click sketch for bigger image)





Disclaimer:

This information has been collected for inventory of property per NCGS 105-317(a)(3) and is provided in order to enable property owners to ascertain the method, rules, and standards of value by which this property has been appraised. This information is compiled from recorded deeds, plats, and other public records data. Users of this information are hereby notified that the aforementioned sources should be consulted for verification of the information contained in this report. The county assumes no legal responsiblity.