HENDERSON COUNTY BANNER

Building Summary

Data last updated on: 3/25/2026     Ownership current as of: 3/18/2026     Tax Year: 2026
REID 9926829

PIN # 9538-29-8864

Location Address Property Description
120 MOUNTAIN VALLEY DR MOUNTAIN VALLEY LO:11 PL:A-215
   
Property Owner Owner's Mailing Address
ABOY-MARTIN, ROSCHEN;MARTIN, ANTONIO
120 MOUNTAIN VALLEY DR
HENDERSONVILLE NC 28739
Parcel
Buildings
Misc Improvements
Land
Deeds
Notes
Sales
Photos
Tax Bill
Map
Building Location Address
120 MOUNTAIN VALLEY DR
Card   of  1
Building Details

Building Type SINGLE FAMILY
Building Use MA-SINGLE FAMILY
Units 0
Living Area (SQFT) 1630
Number of Stories 2.10
Style CONVENTIONAL
Foundation CONCRETE BLOCK
Exterior VINYL
Const Type WJ
Heating FORCED AIR
Air Cond 100% CENTRAL A/C
Plumbing Baths (Full):   2
Baths (Half):   1
Extra Fixtures:   2
Total Plumbing Fixtures:   10 
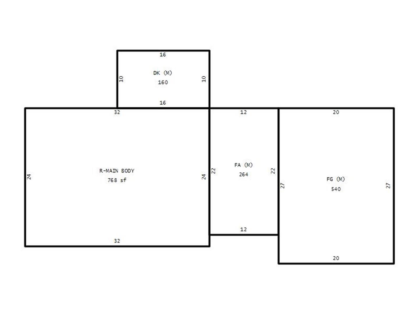
Main Body (SQFT) 768
Building Description

Year Built 1987
Additions 4
Effective Year 2005
Remodeled 0
Interior Adj.
Other Features
Building Total & Improvement Details

Grade B 128%
Percentage Complete 100
Total Adjusted Replacement Cost New $369,340
Physical Depreciation (% Bad) 0%
Depreciated Value $277,005
Economic Depreciation (% Bad) 0%
Functional Depreciation (% Bad) 0%
Total Depreciated Value $277,005
Market Area Factor 1.00
Building Value $277,000
Misc Improvements Value
Total Improvement Value $277,000

Assessed Land Value $82,100
   
Assessed Total Value $359,100



Addition Summary 
StoryTypeCodeArea
1.00 DECK (MAIN) MAIN 160
1.00 FRAME ADDITION (MAIN) MAIN 264
1.00 FRAME ATTACHED GARAGE (MAIN) MAIN 540
1.00 UPPER STORY STRY 598
 
Other Improvements 
 


Building Sketch
Photograph
Building Sketch Building Photo
(Click sketch for bigger image)





Disclaimer:

This information has been collected for inventory of property per NCGS 105-317(a)(3) and is provided in order to enable property owners to ascertain the method, rules, and standards of value by which this property has been appraised. This information is compiled from recorded deeds, plats, and other public records data. Users of this information are hereby notified that the aforementioned sources should be consulted for verification of the information contained in this report. The county assumes no legal responsiblity.