HENDERSON COUNTY BANNER

Building Summary

Data last updated on: 3/25/2026     Ownership current as of: 3/18/2026     Tax Year: 2026
REID 9931302

PIN # 9538-39-2764

Location Address Property Description
127 KALMIA TERRACE CT MOUNTAIN VALLEY #2 LO:40 PL:A-287A
   
Property Owner Owner's Mailing Address
MCINTYRE, JAMES ROBERT;MCINTYRE, CARRIE LEE
127 KALMIA TERRACE CT
HENDERSONVILLE NC 28739
Parcel
Buildings
Misc Improvements
Land
Deeds
Notes
Sales
Photos
Tax Bill
Map
Building Location Address
127 KALMIA TERRACE CT
Card   of  1
Building Details

Building Type SINGLE FAMILY
Building Use MA-SINGLE FAMILY
Units 0
Living Area (SQFT) 3265
Number of Stories 1.00
Style CONVENTIONAL
Foundation CONCRETE BLOCK
Exterior BRICK
Const Type WJ
Heating FORCED AIR
Air Cond 100% CENTRAL A/C
Plumbing Baths (Full):   3
Baths (Half):   1
Extra Fixtures:   2
Total Plumbing Fixtures:   13 
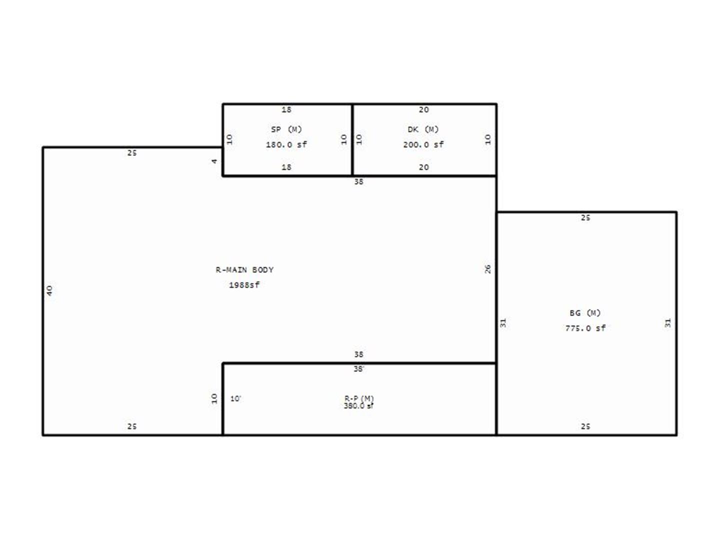
Main Body (SQFT) 1988
Building Description

Year Built 1987
Additions 7
Effective Year 2002
Remodeled 0
Interior Adj.
Other Features
Building Total & Improvement Details

Grade C+ 110%
Percentage Complete 100
Total Adjusted Replacement Cost New $555,520
Physical Depreciation (% Bad) 0%
Depreciated Value $438,861
Economic Depreciation (% Bad) 0%
Functional Depreciation (% Bad) 0%
Total Depreciated Value $438,861
Market Area Factor 1.00
Building Value $438,900
Misc Improvements Value
Total Improvement Value $438,900

Assessed Land Value $97,000
   
Assessed Total Value $535,900



Addition Summary 
StoryTypeCodeArea
1.00 SCREENED PORCH (MAIN) MAIN 180
1.00 DECK (MAIN) MAIN 200
1.00 BRICK ATTACHED GARAGE (MAIN) MAIN 775
1.00 PATIO (MAIN) MAIN 380
1.00 UNFINISHED BASEMENT BSMT 826
1.00 PARTLY FINISHED BASEMENT BSMT 1277
1.00 PATIO (LOWER) LOWE 96
 
Other Improvements 
 


Building Sketch
Photograph
Building Sketch Building Photo
(Click sketch for bigger image)





Disclaimer:

This information has been collected for inventory of property per NCGS 105-317(a)(3) and is provided in order to enable property owners to ascertain the method, rules, and standards of value by which this property has been appraised. This information is compiled from recorded deeds, plats, and other public records data. Users of this information are hereby notified that the aforementioned sources should be consulted for verification of the information contained in this report. The county assumes no legal responsiblity.