HENDERSON COUNTY BANNER

Building Summary

Data last updated on: 3/25/2026     Ownership current as of: 3/18/2026     Tax Year: 2026
REID 9931303

PIN # 9538-39-2877

Location Address Property Description
151 KALMIA TERRACE CT MOUNTAIN VALLEY LO:41 PL:A-287A
   
Property Owner Owner's Mailing Address
OETZMAN, ALAN PAUL;OETZMAN, MORGAN FRANCES
151 KALMIA TERRACE CT
HENDERSONVILLE NC 28739
Parcel
Buildings
Misc Improvements
Land
Deeds
Notes
Sales
Photos
Tax Bill
Map
Building Location Address
151 KALMIA TERRACE CT
Card   of  1
Building Details

Building Type SINGLE FAMILY
Building Use MA-SINGLE FAMILY
Units 0
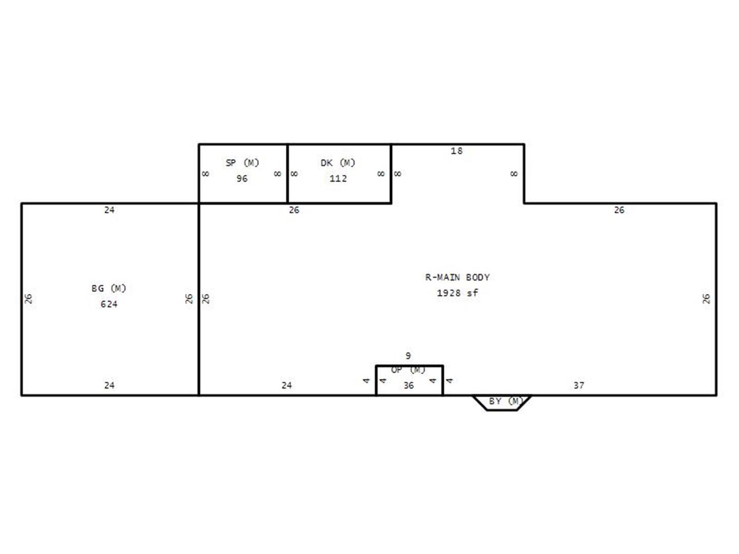
Living Area (SQFT) 1928
Number of Stories 1.00
Style RANCH
Foundation MASONRY
Exterior BRICK
Const Type WJ
Heating FORCED AIR
Air Cond 100% CENTRAL A/C
Plumbing Baths (Full):   2
Baths (Half):   1
Extra Fixtures:   2
Total Plumbing Fixtures:   10 
Main Body (SQFT) 1928
Building Description

Year Built 1988
Additions 7
Effective Year 1999
Remodeled 0
Interior Adj.
Other Features
Building Total & Improvement Details

Grade C+ 110%
Percentage Complete 100
Total Adjusted Replacement Cost New $473,998
Physical Depreciation (% Bad) 0%
Depreciated Value $360,238
Economic Depreciation (% Bad) 0%
Functional Depreciation (% Bad) 0%
Total Depreciated Value $360,238
Market Area Factor 1.00
Building Value $360,200
Misc Improvements Value
Total Improvement Value $360,200

Assessed Land Value $92,300
   
Assessed Total Value $452,500



Addition Summary 
StoryTypeCodeArea
1.00 OPEN FRAME PORCH (MAIN) MAIN 36
1.00 BRICK ATTACHED GARAGE (MAIN) MAIN 624
1.00 SCREENED PORCH (MAIN) MAIN 96
1.00 DECK (MAIN) MAIN 112
1.00 BAY WINDOW (MAIN) MAIN 12
1.00 PATIO (LOWER) LOWE 208
1.00 UNFINISHED BASEMENT BSMT 1832
 
Other Improvements 
 


Building Sketch
Photograph
Building Sketch Building Photo
(Click sketch for bigger image)





Disclaimer:

This information has been collected for inventory of property per NCGS 105-317(a)(3) and is provided in order to enable property owners to ascertain the method, rules, and standards of value by which this property has been appraised. This information is compiled from recorded deeds, plats, and other public records data. Users of this information are hereby notified that the aforementioned sources should be consulted for verification of the information contained in this report. The county assumes no legal responsiblity.