HENDERSON COUNTY BANNER

Building Summary

Data last updated on: 3/25/2026     Ownership current as of: 3/18/2026     Tax Year: 2026
REID 9936561

PIN # 9538-39-8335

Location Address Property Description
184 MOUNTAIN VALLEY DR BOUNDARY SURVEY FOR MITCHELL .55 ACRES LO:54 TR: PH: SE:3 BL: PL:2025-16326 UN:
   
Property Owner Owner's Mailing Address
WOODHEAD, HALIMA NUTTING;MITCHELL, RYAN TRAVIS;MITCHELL, ROGER
184 MOUNTAIN VALLEY DR
HENDERSONVILLE NC 28739
Parcel
Buildings
Misc Improvements
Land
Deeds
Notes
Sales
Photos
Tax Bill
Map
Building Location Address
184 MOUNTAIN VALLEY DR
Card   of  1
Building Details

Building Type SINGLE FAMILY
Building Use MA-SINGLE FAMILY
Units 0
Living Area (SQFT) 2594
Number of Stories 1.00
Style RANCH
Foundation MASONRY
Exterior BRICK
Const Type WJ
Heating FORCED AIR
Air Cond 100% CENTRAL A/C
Plumbing Baths (Full):   2
Baths (Half):   1
Extra Fixtures:   2
Total Plumbing Fixtures:   10 
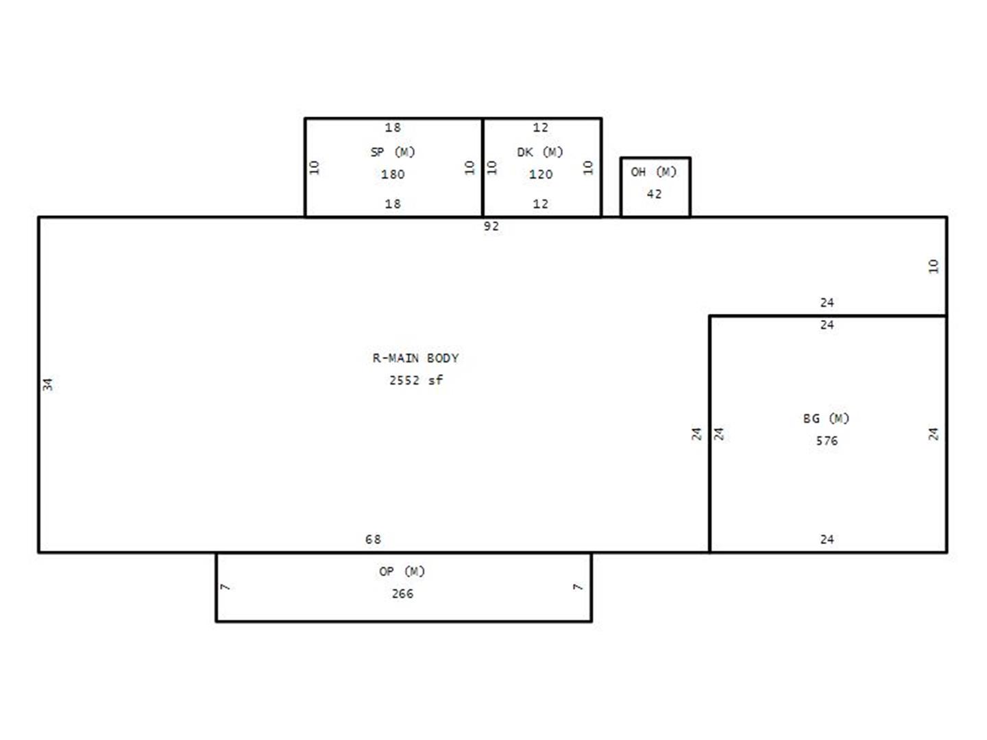
Main Body (SQFT) 2552
Building Description

Year Built 1989
Additions 6
Effective Year 2005
Remodeled 0
Interior Adj.
Other Features
Building Total & Improvement Details

Grade C+ 110%
Percentage Complete 100
Total Adjusted Replacement Cost New $600,727
Physical Depreciation (% Bad) 0%
Depreciated Value $492,596
Economic Depreciation (% Bad) 0%
Functional Depreciation (% Bad) 0%
Total Depreciated Value $492,596
Market Area Factor 1.00
Building Value $492,600
Misc Improvements Value
Total Improvement Value $492,600

Assessed Land Value $75,100
   
Assessed Total Value $567,700



Addition Summary 
StoryTypeCodeArea
1.00 OPEN FRAME PORCH (MAIN) MAIN 266
1.00 SCREENED PORCH (MAIN) MAIN 180
1.00 DECK (MAIN) MAIN 120
1.00 OVERHANG (MAIN) MAIN 42
1.00 BRICK ATTACHED GARAGE (MAIN) MAIN 576
1.00 UNFINISHED BASEMENT BSMT 2552
 
Other Improvements 
 


Building Sketch
Photograph
Building Sketch Building Photo
(Click sketch for bigger image)





Disclaimer:

This information has been collected for inventory of property per NCGS 105-317(a)(3) and is provided in order to enable property owners to ascertain the method, rules, and standards of value by which this property has been appraised. This information is compiled from recorded deeds, plats, and other public records data. Users of this information are hereby notified that the aforementioned sources should be consulted for verification of the information contained in this report. The county assumes no legal responsiblity.