HENDERSON COUNTY BANNER

Building Summary

Data last updated on: 3/25/2026     Ownership current as of: 3/18/2026     Tax Year: 2026
REID 9942585

PIN # 9538-49-8212

Location Address Property Description
329 MOUNTAIN VALLEY DR MOUNTAIN VALLEY LO:100 SE:IV
   
Property Owner Owner's Mailing Address
SHOWALTER, LINDA RAY
329 MOUNTAIN VALLEY DR
HENDERSONVILLE NC 28739
Parcel
Buildings
Misc Improvements
Land
Deeds
Notes
Sales
Photos
Tax Bill
Map
Building Location Address
329 MOUNTAIN VALLEY DR
Card   of  1
Building Details

Building Type SINGLE FAMILY
Building Use MA-SINGLE FAMILY
Units 0
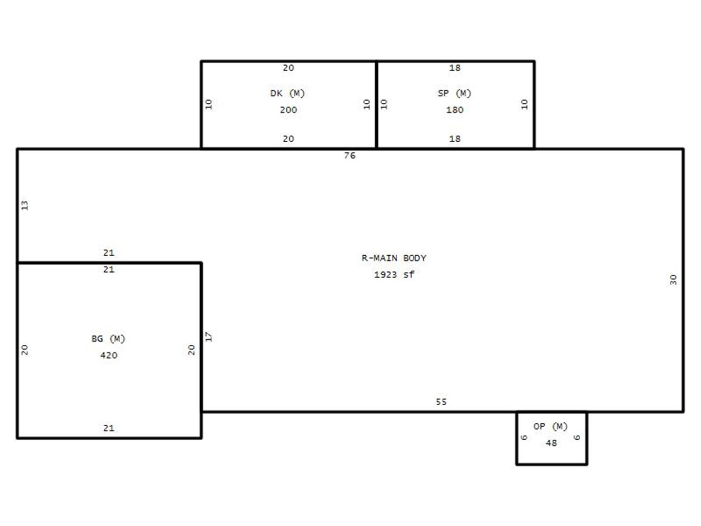
Living Area (SQFT) 3365
Number of Stories 1.00
Style RANCH
Foundation CONCRETE BLOCK
Exterior BRICK
Const Type WJ
Heating FORCED AIR
Air Cond 100% CENTRAL A/C
Plumbing Baths (Full):   4
Baths (Half):   0
Extra Fixtures:   2
Total Plumbing Fixtures:   14 
Main Body (SQFT) 1923
Building Description

Year Built 1992
Additions 6
Effective Year 2002
Remodeled 0
Interior Adj.
Other Features
Building Total & Improvement Details

Grade B- 120%
Percentage Complete 100
Total Adjusted Replacement Cost New $574,686
Physical Depreciation (% Bad) 0%
Depreciated Value $454,002
Economic Depreciation (% Bad) 0%
Functional Depreciation (% Bad) 0%
Total Depreciated Value $454,002
Market Area Factor 1.00
Building Value $454,000
Misc Improvements Value
Total Improvement Value $454,000

Assessed Land Value $130,500
   
Assessed Total Value $584,500



Addition Summary 
StoryTypeCodeArea
1.00 OPEN FRAME PORCH (MAIN) MAIN 48
1.00 BRICK ATTACHED GARAGE (MAIN) MAIN 420
1.00 DECK (MAIN) MAIN 200
1.00 SCREENED PORCH (MAIN) MAIN 180
1.00 UNFINISHED BASEMENT BSMT 481
1.00 PARTLY FINISHED BASEMENT BSMT 1442
 
Other Improvements 
 


Building Sketch
Photograph
Building Sketch Building Photo
(Click sketch for bigger image)





Disclaimer:

This information has been collected for inventory of property per NCGS 105-317(a)(3) and is provided in order to enable property owners to ascertain the method, rules, and standards of value by which this property has been appraised. This information is compiled from recorded deeds, plats, and other public records data. Users of this information are hereby notified that the aforementioned sources should be consulted for verification of the information contained in this report. The county assumes no legal responsiblity.