HENDERSON COUNTY BANNER

Building Summary

Data last updated on: 3/25/2026     Ownership current as of: 3/18/2026     Tax Year: 2026
REID 9954977

PIN # 9538-59-3445

Location Address Property Description
71 DALLAS DR MOUNTAIN VALLEY LO:113R SE:V PL:2000-3538
   
Property Owner Owner's Mailing Address
JOEL ROBERT DUVALL REVOCABLE LIVING TRUST;KELLY BUTLER DUVALL REVOCABLE LIVING TRUST;DUVALL, JOEL ROBERT TRUSTEE;DUVALL, KELLY BUTLER TRUSTEE
71 DALLAS DR
HENDERSONVILLE NC 28739
Parcel
Buildings
Misc Improvements
Land
Deeds
Notes
Sales
Photos
Tax Bill
Map
Building Location Address
71 DALLAS DR
Card   of  1
Building Details

Building Type SINGLE FAMILY
Building Use MA-SINGLE FAMILY
Units 0
Living Area (SQFT) 3160
Number of Stories 1.00
Style CONVENTIONAL
Foundation CONCRETE BLOCK
Exterior BRICK
Const Type WJ
Heating HEAT PUMP
Air Cond 100% CENTRAL A/C
Plumbing Baths (Full):   3
Baths (Half):   0
Extra Fixtures:   2
Total Plumbing Fixtures:   11 
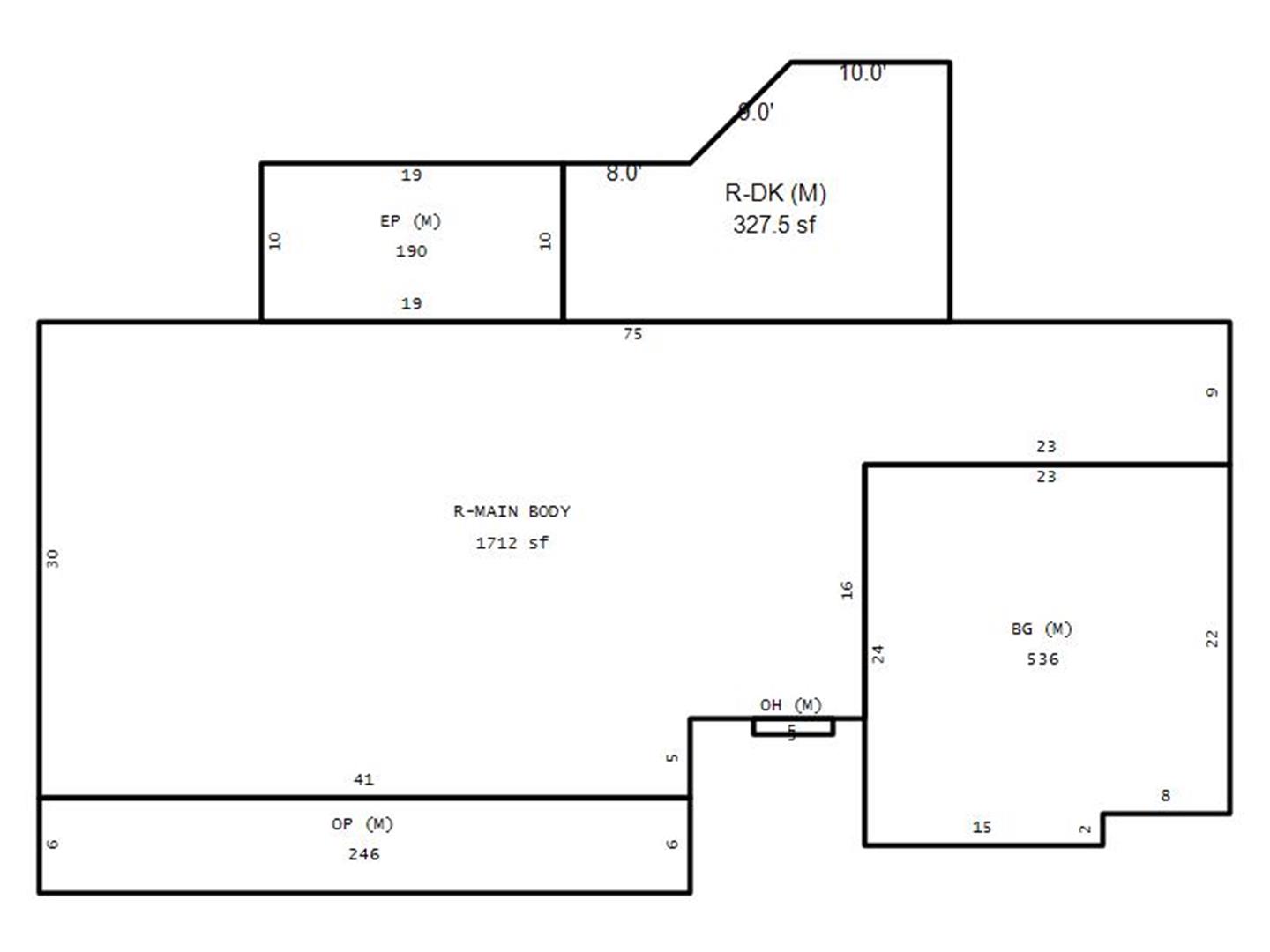
Main Body (SQFT) 1712
Building Description

Year Built 2001
Additions 9
Effective Year 2005
Remodeled 0
Interior Adj.
Other Features
Building Total & Improvement Details

Grade A- 145%
Percentage Complete 100
Total Adjusted Replacement Cost New $668,234
Physical Depreciation (% Bad) 0%
Depreciated Value $547,952
Economic Depreciation (% Bad) 0%
Functional Depreciation (% Bad) 0%
Total Depreciated Value $547,952
Market Area Factor 1.00
Building Value $548,000
Misc Improvements Value
Total Improvement Value $548,000

Assessed Land Value $76,600
   
Assessed Total Value $624,600



Addition Summary 
StoryTypeCodeArea
1.00 OPEN FRAME PORCH (MAIN) MAIN 246
1.00 ENCLOSED FRAME PORCH (MAIN) MAIN 190
1.00 OVERHANG (MAIN) MAIN 5
1.00 BRICK ATTACHED GARAGE (MAIN) MAIN 536
1.00 DECK (MAIN) MAIN 328
1.00 PATIO (LOWER) LOWE 150
1.00 PATIO (LOWER) LOWE 190
1.00 PARTLY FINISHED BASEMENT BSMT 1443
1.00 UNFINISHED BASEMENT BSMT 630
 
Other Improvements 
 


Building Sketch
Photograph
Building Sketch Building Photo
(Click sketch for bigger image)





Disclaimer:

This information has been collected for inventory of property per NCGS 105-317(a)(3) and is provided in order to enable property owners to ascertain the method, rules, and standards of value by which this property has been appraised. This information is compiled from recorded deeds, plats, and other public records data. Users of this information are hereby notified that the aforementioned sources should be consulted for verification of the information contained in this report. The county assumes no legal responsiblity.