Building Summary

Data last updated on: 4/6/2026     Ownership current as of: 3/30/2026     Tax Year: 2026
REID 1201999

PIN # 1610-73-9447

Location Address Property Description
201 W 6TH ST
   
Property Owner Owner's Mailing Address
HOUSE OF OSBORN
2447 RICEVILLE RD
ASHEVILLE NC 28805
Parcel
Buildings
Misc Improvements
Land
Deeds
Notes
Sales
Photos
Map
Building Location Address
201 W 6TH ST
Card   of  1
Building Details

Building Type RESIDENTIAL
Building Use 37
Units 0
Living Area (SQFT) 1774
Number of Stories 2.00
Style 2+ STORIES
Foundation BLOCK/BRICK
Frame WOOD FRAME
Exterior Wood Plank Siding
Const Type WOODF
Heating HEAT PUMP
Air Cond HEAT PUMP
Plumbing Baths (Full):   2
Baths (Half):   1
Extra Fixtures:   5
Total Plumbing Fixtures:   13 
Bedrooms 3
Floor HARDWOOD
Subfloor WOOD FRAME
Roof Cover ASPHALT/FIBERGLASS
Roof Type MANSARD
Lighting INCANDESCENT
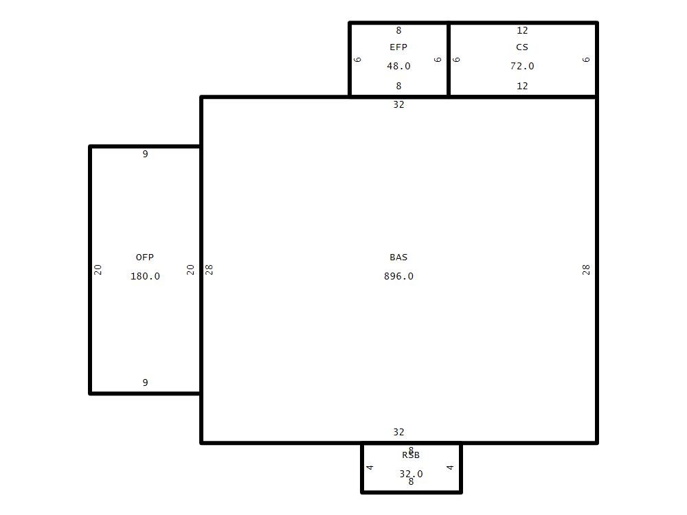
Main Body (SQFT) 896
Building Description

Year Built 1925
Additions 6
Effective Year 2000
Remodeled 0
Interior Adj.
Other Features
Building Total & Improvement Details

Grade GD 120%
Percentage Complete 100
Total Adjusted Replacement Cost New $377,052
Physical Depreciation (% Bad) 0%
Depreciated Value $334,558
Economic Depreciation (% Bad) 0%
Functional Depreciation (% Bad) 0%
Total Depreciated Value $334,558
Market Area Factor 1.00
Building Value $334,600
Misc Improvements Value $18,400
Total Improvement Value $353,000

Assessed Land Value $18,000
   
Assessed Total Value $371,000



Addition Summary 
StoryTypeCodeArea
1.00 RAISED SLAB RSB 32
1.00 OPEN FRAME PORCH OFP 180
1.00 ENCLOSED FRAME PORCH EFP 48
1.00 CONCRETE SLAB CS 72
1.00 BASEMENT UNFINISHED BSMT 659
1.00 FINISHED UPPER STORY FINU 878
 
Other Improvements 
UnitsDescriptionItemCodeYear% BadValue
648 SIZE RES SWIM POOL 1992 50 16800
163 SIZE WOOD DECK 2012 37 1600
 


Building Sketch
Photograph
Building Sketch Building Photo
(Click sketch for bigger image)