Building Summary

Data last updated on: 4/6/2026     Ownership current as of: 3/30/2026     Tax Year: 2026
REID 1202675

PIN # 1610-65-8715

Location Address Property Description
559 N WASHINGTON ST
   
Property Owner Owner's Mailing Address
FISHER, LORI;FISHER, KENNETH
559 N WASHINGTON ST
RUTHERFORDTON NC 28139
Parcel
Buildings
Misc Improvements
Land
Deeds
Notes
Sales
Photos
Map
Building Location Address
559 N WASHINGTON ST
Card   of  1
Building Details

Building Type RESIDENTIAL
Building Use 37
Units 0
Living Area (SQFT) 2762
Number of Stories 1.40
Style 2+ STORIES
Foundation BLOCK/BRICK
Frame WOOD FRAME
Exterior BRICK
Const Type WOODF
Heating STEAM/HOT WATER
Air Cond NO AIR CONDITIONING
Plumbing Baths (Full):   2
Baths (Half):   0
Extra Fixtures:   3
Total Plumbing Fixtures:   9 
Bedrooms 4
Floor HARDWOOD
Subfloor WOOD FRAME
Roof Cover ASPHALT/FIBERGLASS
Roof Type GABLE
Lighting INCANDESCENT
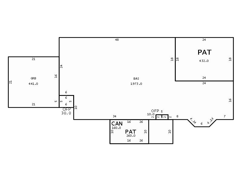
Main Body (SQFT) 1973
Building Description

Year Built 1945
Additions 8
Effective Year 1965
Remodeled 0
Interior Adj.
Other Features
Building Total & Improvement Details

Grade GD 120%
Percentage Complete 100
Total Adjusted Replacement Cost New $547,947
Physical Depreciation (% Bad) 0%
Depreciated Value $310,353
Economic Depreciation (% Bad) 0%
Functional Depreciation (% Bad) 0%
Total Depreciated Value $310,353
Market Area Factor 1.00
Building Value $310,400
Misc Improvements Value
Total Improvement Value $310,400

Assessed Land Value $43,900
   
Assessed Total Value $354,300



Addition Summary 
StoryTypeCodeArea
1.00 OPEN FRAME PORCH OFP 30
1.00 GARAGE BRICK GRB 441
1.00 PATIO PAT 432
1.00 OPEN FRAME PORCH OFP 10
1.00 CANOPY CAN 160
1.00 PATIO PAT 260
1.00 BASEMENT UNFINISHED BSMT 744
1.00 FINISHED UPPER STORY FINU 789
 
Other Improvements 
 


Building Sketch
Photograph
Building Sketch Building Photo
(Click sketch for bigger image)