Building Summary

Data last updated on: 4/6/2026     Ownership current as of: 3/30/2026     Tax Year: 2026
REID 1203885

PIN # 1610-66-3424

Location Address Property Description
142 FERNWOOD CIR FERNWOOD LO:4 PL:5-57
   
Property Owner Owner's Mailing Address
CARVER, CHARLES J III;CARVER, LYNDA R
142 FERNWOOD CIRCLE
RUTHERFORDTON NC 28139
Parcel
Buildings
Misc Improvements
Land
Deeds
Notes
Sales
Photos
Map
Building Location Address
142 FERNWOOD CIR
Card   of  1
Building Details

Building Type RESIDENTIAL
Building Use 37
Units 0
Living Area (SQFT) 1896
Number of Stories 1.00
Style 1 STORY
Foundation BLOCK/BRICK
Frame WOOD FRAME
Exterior BRICK
Const Type WOODF
Heating HEAT PUMP
Air Cond HEAT PUMP
Plumbing Baths (Full):   1
Baths (Half):   1
Extra Fixtures:   3
Total Plumbing Fixtures:   8 
Bedrooms 3
Floor HARDWOOD
Subfloor WOOD FRAME
Roof Cover ASPHALT/FIBERGLASS
Roof Type GABLE
Lighting INCANDESCENT
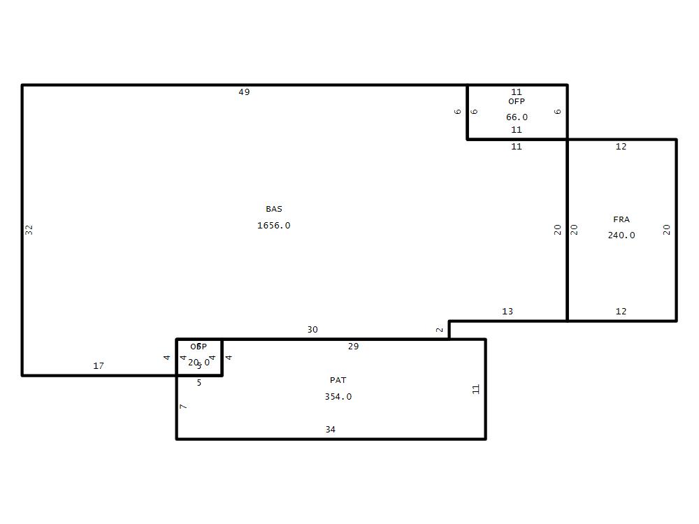
Main Body (SQFT) 1656
Building Description

Year Built 1957
Additions 4
Effective Year 1975
Remodeled 0
Interior Adj.
Other Features
Building Total & Improvement Details

Grade AV+1 110%
Percentage Complete 100
Total Adjusted Replacement Cost New $329,457
Physical Depreciation (% Bad) 0%
Depreciated Value $229,483
Economic Depreciation (% Bad) 0%
Functional Depreciation (% Bad) 0%
Total Depreciated Value $229,483
Market Area Factor 1.00
Building Value $229,500
Misc Improvements Value
Total Improvement Value $229,500

Assessed Land Value $20,000
   
Assessed Total Value $249,500



Addition Summary 
StoryTypeCodeArea
1.00 OPEN FRAME PORCH OFP 20
1.00 OPEN FRAME PORCH OFP 66
1.00 PATIO PAT 354
1.00 FRAME ADDITION FRA 240
 
Other Improvements 
 


Building Sketch
Photograph
Building Sketch Building Photo
(Click sketch for bigger image)